EasyManua.ls Logo

Viking VCCI3608 - Page 3

Viking VCCI3608
20 pages
Print Icon
To Next Page IconTo Next Page
To Next Page IconTo Next Page
To Previous Page IconTo Previous Page
To Previous Page IconTo Previous Page
Loading...
3
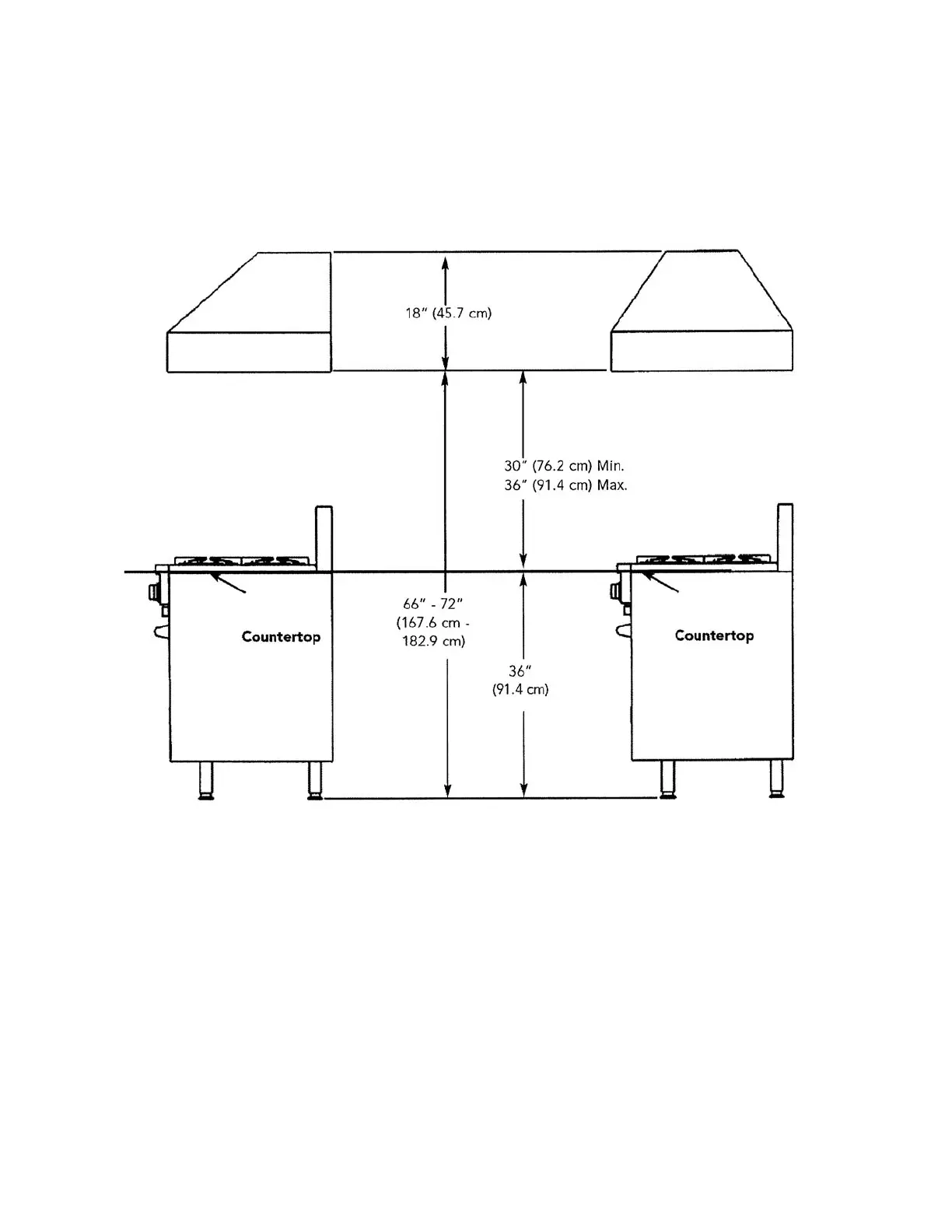
HEIGHT OF HOOD
The bottom of the hood should be 30” (76.2 cm) min. to 36” (91.4 cm) max. above the countertop. This
would typically result in the bottom of the hood being 66” (167.6 cm) to 72” (175.3 cm) above the floor. The bottom
of the hood should never be more than 72” (182.9 cm) above the floor or more than 36” (91.4 cm) above the
countertop. These dimensions provide for safe and efficient operation of the hood.
WALL INSTALLATION
ISLAND INSTALLATION

Related product manuals