EasyManua.ls Logo

Viking VCCI3608 - Page 6

Viking VCCI3608
20 pages
Print Icon
To Next Page IconTo Next Page
To Next Page IconTo Next Page
To Previous Page IconTo Previous Page
To Previous Page IconTo Previous Page
Loading...
6
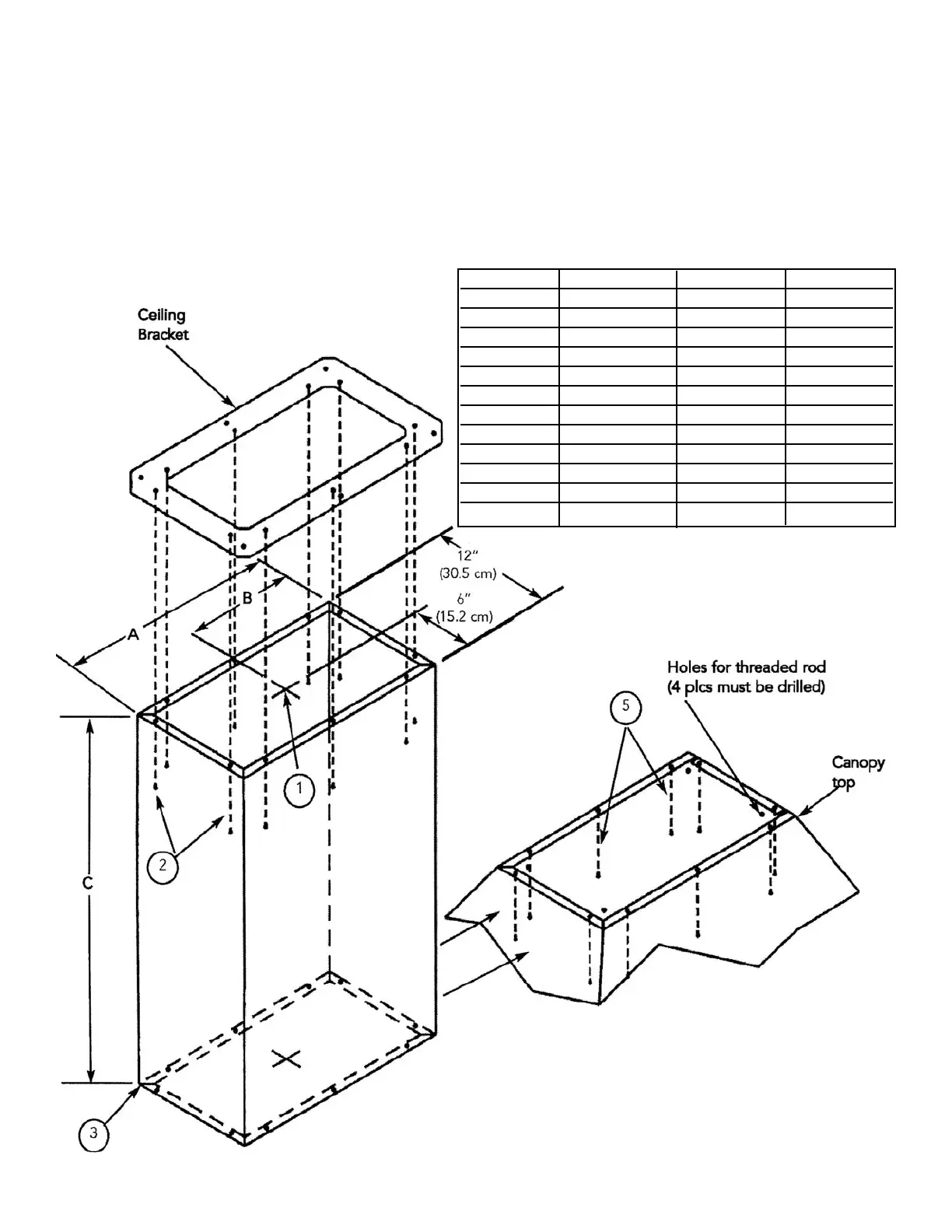
INSTALLING THE ISLAND HOOD DUCT COVER
1. Cut hole in ceiling for 10” diameter duct.
2. Attach duct cover mounting bracket to the top of the duct cover with the nuts and screws provided.
3. Using the screws provided, mount the bracket to the ceiling. Make sure the area is able to support at least 200 lbs.
(Center duct cover with 10” diameter hole.)
4. Run duct work down to bottom edge of duct cover and secure in place. Make sure the duct does not stick down
past the cover.
5. Attach duct cover to the top of the canopy with screws provided. Additional support can be added by running
threaded rod from the ceiling to the top of the canopy at all four corners. Holes must be drilled.
6. Install blower. (See ventilation kit installation.)
Model “A” “B” “C”
VCCI3608 12” (30.5 cm) 6” (15.2 cm) 12” (30.5 cm)
VCCI3609 12” (30.5 cm) 6” (15.2 cm) 24” (61.0 cm)
VCCI3610 12” (30.5 cm) 6” (15.2 cm) 36” (91.4 cm)
VCCI4208 12” (30.5 cm) 6” (15.2 cm) 12” (30.5 cm)
VCCI4209 12” (30.5 cm) 6” (15.2 cm) 24” (61.0 cm)
VCCI4210 12” (30.5 cm) 6” (15.2 cm) 36” (91.4 cm)
VCCI5408 18” (45.7 cm) 9” (22.7 cm) 12” (30.5 cm)
VCCI5409 18” (45.7 cm) 9” (22.7 cm) 24” (61.0 cm)
VCCI5410 18” (45.7 cm) 9” (22.7 cm) 36” (91.4 cm)
VCCI6608 24” (61.0 cm) 12” (30.5 cm) 12” (30.5 cm)
VCCI6609 24” (61.0 cm) 12” (30.5 cm) 24” (61.0 cm)
VCCI6610 24” (61.0 cm) 12” (30.5 cm) 36” (91.4 cm)

Related product manuals