EasyManua.ls Logo

Vimar Elvox 559C - Page 9

Vimar Elvox 559C
12 pages
Print Icon
To Next Page IconTo Next Page
To Next Page IconTo Next Page
To Previous Page IconTo Previous Page
To Previous Page IconTo Previous Page
Loading...
CT
N° vc3624-2
RETE-MAINS
RÉSEAU-NETZ
RED-REDE
ALIMENTATORE-POWER SUPPLY
ALIMENTATION-NETZGERÄT
ALIMENTADOR Art. 6681
N.B.
In caso di ronzio sulla fonica spostare
il commutatore “A-B” situato sotto il
coperchio in posizione “A”.
If a humming sound is detected on the
phonic line, set slide switch “A-B” under
the cover to position “A”.
en cas de bourdonnement sur la ligne
phonique déplacer le commutateur “A-B”,
situé sous le couvercle, sur la position
“A”.
Ist bei der Audioverbindung ein Brummton
zu hören, muß der Schiebeschalter “A-B”
unter dem Gehäusedeckel in Position “A”
gebracht werden.
En caso de zumbido en la fónica desplazar
el conmutador “A-B” que se encuentra
debajo de la tapa en la posición “A”.
No caso de ruído na linha audio mudar o
comutador “A-B” situado na tampa para a
posição “A”.
TELECAMERA CON ALTOPARLANTE
CAMERA WITH LOUDSPEAKER
CAMÉRA AVEC HAUT-PARLEUR
KAMERA MIT LAUTSPRECHER
CÁMARA CON ALTAVOZ
TELECÂMARA COM ALTIFALANTE
TASTI DI CHIAMATA
CALL PUSH-BUTTON
POUSSOIRS D’APPEL
RUFTASTEN
PULSADORES DE LLAMADA
BOTÕES DE CHAMADA
MICROFONO
MICROPHONE
MICROPHONE
MIKROFON
MICROFONO
MICROFONE
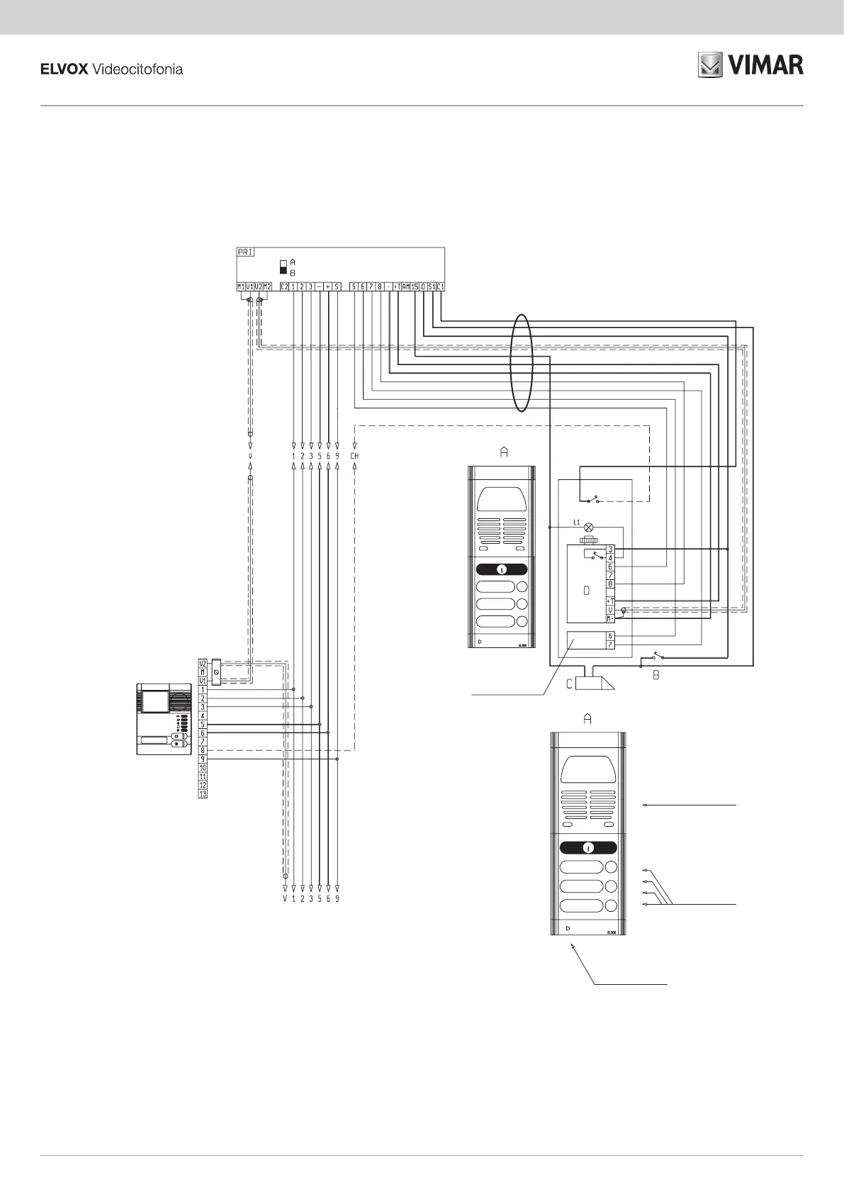
A- Targa per videocitofono serie 8000 con telai Art.
8B81, 8B82, 8B83, 8B84
8000 series video door entry panel with frames
type 8B81, 8B82 and 8B83, 8B84
Plaque de rue vidéo série 8000 avec châssis
Art. 8B81, 8B82, 8B83, 8B84
Video-Klingeltableau der Baureihe 8000 mit
Außenrahmen Art. 8B81, 8B82 und 8B83, 8B84
Placa vídeo serie 8000 con marcos Art. 8B81.
8B82 y 8B83, 8B84
Botoneira video série 8000 com aros Art. 8B81,
8B82 e 8B83, 8B84
B- Pulsante supplementare serratura
Additional push-button for lock
Poussoir supplémentaire gâche
zusätzliche Türöffnertaste
Pulsador suplementario cerradura
Botão suplementar de trinco
C- Serratura elettrica
Electric lock
Gâche électrique
Elektrischer Türöffner
Cerradura eléctrica
Trinco eléctrico 12V~
D- Telecamera con posto esterno
Camera with speech unit
Caméra avec micro et haut-parleur
Kamera mit Außenstelle
Cámara con aparato externo
Telecâmara com posto externo Art. 559C
MICROFONO
MICROPHONE
MICROPHONE
MIKROFON
MICROFONO
MICROFONE
CAVO - CABLE
CÂBLE - KABEL
CABLE - CABO
Art. 0061/001 - 0061/003
IMPIANTO DI VIDEOCITOFONO MONO-PLURIFAMILIARE A VIVA VOCE
SINGLE AND MULTI RESIDENCE VIDEO DOOR ENTRY SYSTEM WITH OPEN VOICE
PORTIER VIDÉO MONO ET PLURI-FAMILIAL À VIVE VOIX
VIDEO-TÜRSPRECHANLAGE FÜR EIN UND MEHR FAMILIENHAUSER MIT FREISPRECHEINRICHTUNG
INSTALACIÓN DE VÍDEO PORTERO PARA UNA O VARIAS FAMILIAS CON VIVA VOZ BICANAL
INSTALACÄO DE VIDEO PORTEIRO ALTA VOZ BICANAL PARA UNA OU VÁRIAS FAMILIAS
MONITOR
MONITEUR
ART. 5653
ART. 5654
Montante
Cable riser
Steigleitung
Montant
Montante
Coluna montante
L1- Modulo LED targa
Led module for entrance panel.
Module LED pour plaque de rue
LED-Modul für Klingeltableau.
Módulo Led para placa.
Módulo LED para botoneira.
(10 moduli LED max.)
30 moduli LED con/mit Art. M832
40 moduli LED con/mit Art. 0832/030
9
559C

Related product manuals