EasyManua.ls Logo

Vimar Elvox 875G - System Components Identification; Conductor Section Requirements; Optional Call Repeater

Vimar Elvox 875G
12 pages
Print Icon
To Next Page IconTo Next Page
To Next Page IconTo Next Page
To Previous Page IconTo Previous Page
To Previous Page IconTo Previous Page
Loading...
3
PTESDEFRENIT
A1- TARGA ART. 88T5
A2- TARGA ART. 88T6
B- PULSANTE SUPPLEMENTARE SERRATURA
C- SERRATURA ELETTRICA 12V~
D- POSTO ESTERNO ART. 930G
E- PULSANTI
A1- ENTRANCE PANEL ART. 88T5
A2- ENTRANCE PANEL ART. 88T6
B- ADDITIONAL PUSH-BUTTON FOR LOCK
C- 12V A.C. ELECTRIC LOCK
D- SPEECH UNIT ART. 930G
E- PUSH-BUTTONS
A1- PLAQUE DE RUE ART. 88T5
A2- PLAQUE DE RUE ART. 88T6
C- POUSSOIR SUPPLÉMENTAIRE GÂCHE
D- GÂCHE ÉLECTRIQUE 12V C.A.
B- POSTE EXTERNE ART. 930G
E- POUSSOIRS
A1 - TÜRSPRECHSTELLE ART. 88T5
A2 - TÜRSPRECHSTELLE ART. 88T6
C - ZÜZATZTLICHE TÜRÖFFNERTASTE
D - ELEKTRISCHER TÜRÖFFNER 12V~
B- AUSSENSTELLE ART. 930G
E- TASTEN
A1 - PLACA ART. 88T5
A2 - PLACA ART. 88T6
C - PULSADOR SUPLEMENTARIO CERRADURA
D- CERRADURA ELÉCTRICA 12V~
B - APARATO EXTERNO ART. 930G
E- PULSADORES
A1- BOTONEIRA ART. 88T5
A2- BOTONEIRA ART. 88T6
C- BOTÃO SUPLEMENTAR DE TRINCO
D- TRINCO ELÉCTRICO 12V~
B - POSTO EXTERNO ART. 930G
E- BOTÕES
Sezione conduttori - Conductor section - Sections des conducteurs
Leiterquerchnitt - Secciones conductores - Secção condutores
Conduttori-Conductors Ø fino a 50m - Ø up to 50m Ø fino a 100m - Ø up to 100m Ø fino a 200m - Ø up to 200m
Conductors-Leitungslänge Ø jusqu’à 50m - Ø bis 50m Ø jusqu’à 100m - Ø bis 100m Ø jusqu’à 200m - Ø bis 200m
Conductores-Condutores Øhasta 50m - Ø até 50m Ø hasta 100m - Øaté 100m Ø hasta 200m - Ø até 200m
Comune (3)
Common (3)
Commun (3)
Gemeinsame (3) 0,5 mm
2
0,75 mm
2
1,5 mm
2
Común (3)
Commun (3)
0 - 12 0,25 mm
2
0,5 mm
2
1 mm
2
MINIMUM CONDUCTOR SECTION (mm²)
SEZIONE MINIMA CONDUTTORI (mm²)
- + Lock +T
OTHERS
ALTRI
MORSETTI
TERMINALS
- + Serrat. +T
0,25mm² 0,5mm²
50 Mt.
0,5mm²
100 Mt.
0,75mm²
1mm²
200 Mt.
1,5mm²
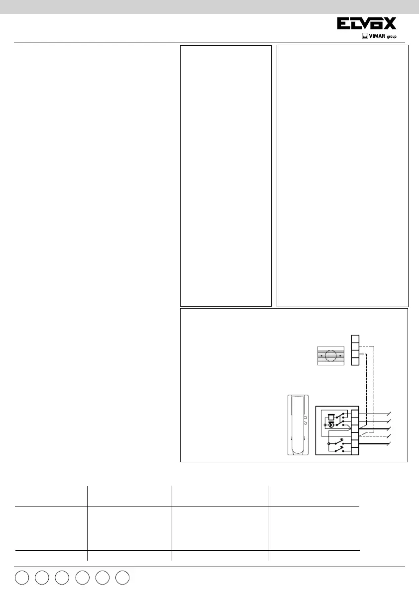
PULSANTE SUPPLEMENTARE SERRATURA
D-
POSTO ESTERNO ART. 930G
SPEECH UNIT ART. 930G
AUDIO ENTRANCE PANEL Art. 88T2
12V~ ELECTRIC LOCK
TARGA AUDIO Art. 88T2
SERRATURA ELETTRICA 12V~
AUXILIARY LOCK PUSH-BUTTON
B-
C-
A2-
2
3
6
7
1
8
2
5
6
3
OPTIONAL
RIPETITORE DI CHIAMATA Art. 2/841 (optional)
Variante di collegamento per
AUDIO ENTRANCE PANEL Art. 88T5
TARGA AUDIO Art. 88T5
A1-
collegare direttamente ai morsetti 3 e 4 del posto esterno Art. 930G.
to connect directly to terminals 3 and 4 of speech unit type 930G.
Cavo di alimentazione separato dai rimanenti conduttori, da
Supply voltage cable separated from the remaining conductors
*
Nel caso di ronzio sulla fonica spostare nel posto esterno Art. 930G,
In case of summing noise on the audio line, displace (on the
i fili di alimentazione della serratura e della luce targa,
dal morsetto 4 al morsetto AS.
speech unit type 930G) the supply voltage wires of the door lock
and the panel lighting from terminal 4 to terminal AS.
N.B.
2
3
6
7
1
8
CH S231
2
3
6
7
1
8
C
2
1
3
AS
4
C1
D
B
P2
P1
120
PRI
*
CH
A2
NAME HOLDER LIGHTING
G-
LED ILLUMINAZIONE CARTELLINO PORTANOME
VOLUME INTERNO
VOLUME ESTERNO
CALL PUSH-BUTTON
E-
PULSANTE DI CHIAMATA
INTERNAL VOLUME
EXRERNAL VOLUME
SETTINGS
REGOLAZIONI
2
3
6
7
1
8
CH S231
C
2
1
3
AS
4
C1
D
B
P2
P1
120
PRI
*
A1
A2A1
Ripetitore di chiamata
Call repeater
Répétiteur d’appel
Lautsprecher für Rufverdoppelung
Repetidor de llamada
Repetidor de chamada
Art. 0002/841.05
Citofono
Phone
Poste
Haustelefon
Interfono
Telefone
Art. 8875/S
OPTIONAL
N.B.
Nel caso di ronzio sulla fonica
spostare nel posto esterno Art.
930G, il filo di alimentazione
della serratura, dal morsetto 4 al
morsetto AS.
In case of summing noise on
the audio line, displace (on the
speech unit type 930G) the sup-
ply voltage wire of the door lock
from terminal 4 to terminal AS.
En cas de bourdonnement sur
la phonique déplacer le fil d’a-
limentation de la gâche dans le
poste externe Art. 930G, de la
borne 4 à la borne As.
Falls ein Brummgeräusch auf
der Audiolinie gibt, bei der Aus-
senstelle Art. 930G den Versor-
gungsdraht des Türschlosses
von Klemme 4 an Klemme AS
ersetzen.
En caso de zumbido en la fónica
desplazar en el aparato externo
Art. 930G el hilo de alimentación
de la cerradura del borne 4 al
borne AS.
No cso de ruido na fónica de-
splazar no posto externo Art.
930G o fio de alimentação do
trinco do terminal 4 ao terminal
AS.
*
I cavi di alimentazione (230V) e i cavi 12 o 15
Vca vanno su canalizzazioni separate dagli
altri conduttori per non determinare disturbi di
induzione. I cavi 12 o 15 Vca vanno collegati
direttamente ai morsetti 3 e 4 del posto esterno
Art. 930G.
The power supply cables (230 V) and the 12
or 15 Vac cables should run through separate
ducts from the other conductors, so as not to
cause interference by induction. The 12 or 15
Vac cables should be connected directly to the
terminals 3 and 4 on the speech unit Art. 930G.
Les câbles d’alimentation (230 V) et les câbles
de 12 ou 15 Vca vont sur des conduites
séparées des autres conducteurs pour éviter
des phénomènes d’induction. Les câbles de 12
ou 15 Vca doivent être reliés directement aux
bornes 3 et 4 du micro haut-parleur Art. 930G.
Die Versorgungskabel (230V) und die 12 bzw.
15 Vac Kabel sind in von anderen Leitern sepa-
raten Kanälen zu verlegen, um Störungen durch
Induktionsströme vorzubeugen. Die 12 bzw. 15
Vca Kabel sind direkt an die Klemmen 3 und 4
der Außenstelle Art. 930G anzuschließen.
Los cables de alimentación (230 V) y los cables
de 12 o 15 Vca deben instalarse en canaletas
separadas de los demás conductores para evi-
tar interferencias por inducción. Los cables de
12 o 15 Vca deben conectarse directamente a
los bornes 3 y 4 del aparato externo Art. 930G.
Os cabos de alimentação (230V) e os cabos de
12 ou 15 Vca vão para canalizações separadas
dos outros condutores para não determinar di-
stúrbios de indução. Os cabos de 12 ou 15 Vca
são directamente ligados aos bornes 3 e 4 do
posto externo Art. 930G.

Related product manuals