EasyManua.ls Logo

Whirlpool GU1200XT - Electronic Control Connector Pins

Whirlpool GU1200XT
46 pages
Print Icon
To Next Page IconTo Next Page
To Next Page IconTo Next Page
To Previous Page IconTo Previous Page
To Previous Page IconTo Previous Page
Loading...
40
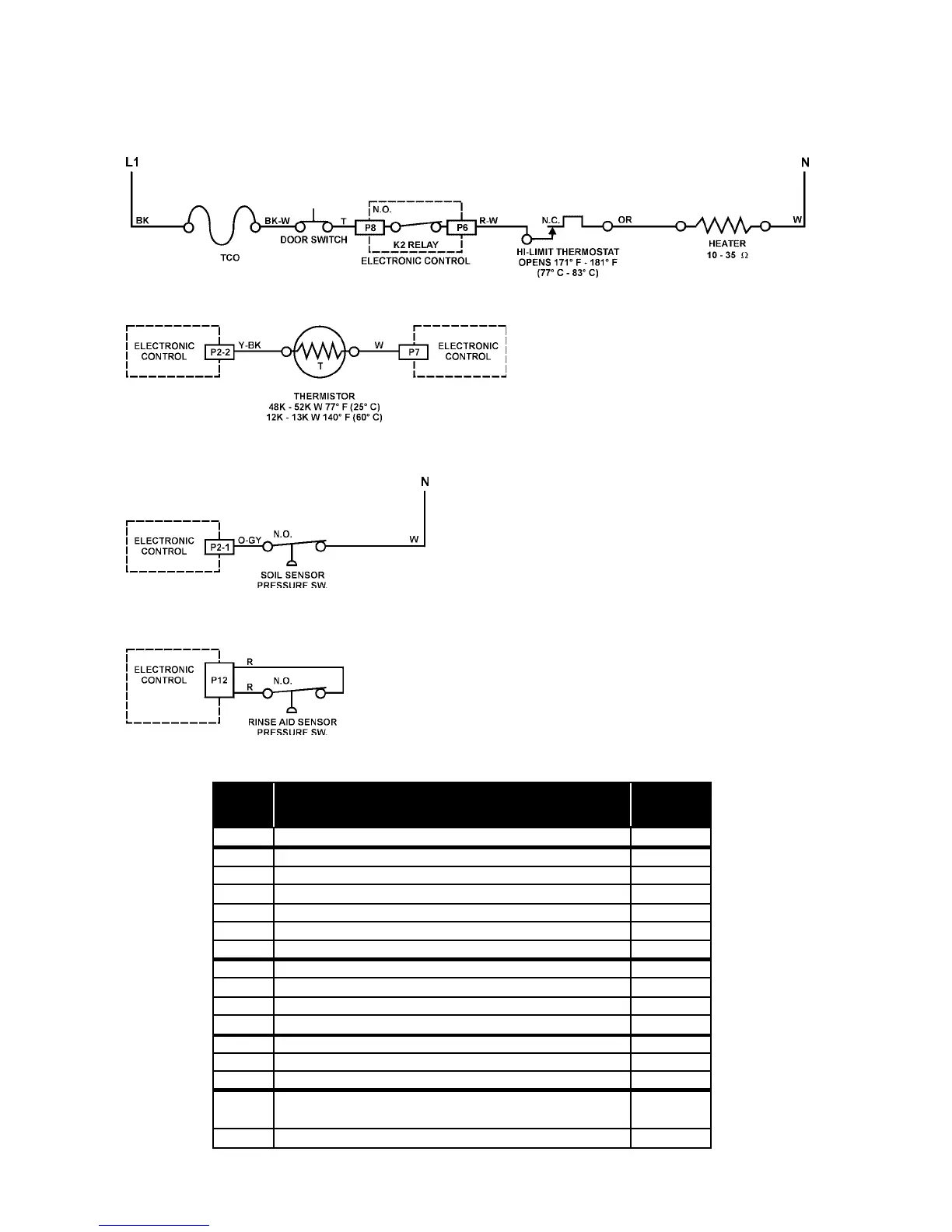
Heater Circuit
Thermistor
WATER HEATING
SOIL SENSING
RINSE AID SENSING
P1
P2-1
P2-2
P2-3
P2-4
P2-5
P2-6
P3
P4
P5
P6
P7
P8
P9
P10
P12
RIBBON CABLE TO USER INTERFACE
PRESSURE SWITCH (SOIL SENSE)
THERMISTOR
FILL VALVE
DISPENSER
OPEN
TO CONTROL POWER SUPPLY
DRAIN MOTOR
WASH MOTOR AUX WINDING
WASH MOTOR RUN WINDING
SWITCHED L1 TO HEATER
AC NEUTRAL
SWITCHED L1 FROM TCO
SWITCHED L1 TO WASH MOTOR COMMON
SWITCHED L1 TO VENT, FILL VALVE,
DISPENSER & PRESSSURE SWITCH
OPTIONAL RINSE AID
-
O-GY
Y-BK
BR
LBU
O-BK
T
GY
Y
BU
W-R
W-V
T
R-BK
BU-BK
R
PIN
NO.
DESCRIPTION
WIRE
COLOR
ELECTRONIC CONTROL CONNECTOR PINS

Related product manuals