EasyManua.ls Logo

Winco EFS-16 - Wiring Diagram

Winco EFS-16
24 pages
Print Icon
To Next Page IconTo Next Page
To Next Page IconTo Next Page
To Previous Page IconTo Previous Page
To Previous Page IconTo Previous Page
Loading...
WINCO / DWL Industries Co. 9
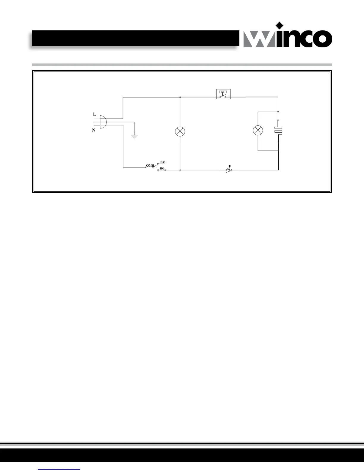
Wiring Diagram
EFS-16 & EFT-32
LIMIT SWITCH
20.5A 125V T125
SAFETY RESET SWITCH
446°F (230°C) 16A 250V T125
POWER SUPPLY
120V AC 60Hz
GROUND
POWER
INDICATOR
LAMP
120V
(GREEN)
TEMPERATURE
READY
LIGHT
120V
(RED)
THERMOSTAT
122~374°F (50~190°C) 16A 250Vac
HEATING
ELEMENT
1800W \ 120V

Related product manuals