EasyManua.ls Logo

Window Master WLA 330 - Operating, Control and Display Elements

Window Master WLA 330
6 pages
Print Icon
To Next Page IconTo Next Page
To Next Page IconTo Next Page
To Previous Page IconTo Previous Page
To Previous Page IconTo Previous Page
Loading...
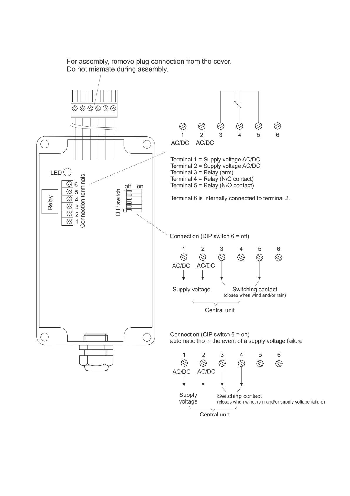
Operating/control and display elements