EasyManua.ls Logo

Window Master WLA 330 - Connection to Control Units

Window Master WLA 330
6 pages
Print Icon
To Next Page IconTo Next Page
To Next Page IconTo Next Page
To Previous Page IconTo Previous Page
To Previous Page IconTo Previous Page
Loading...
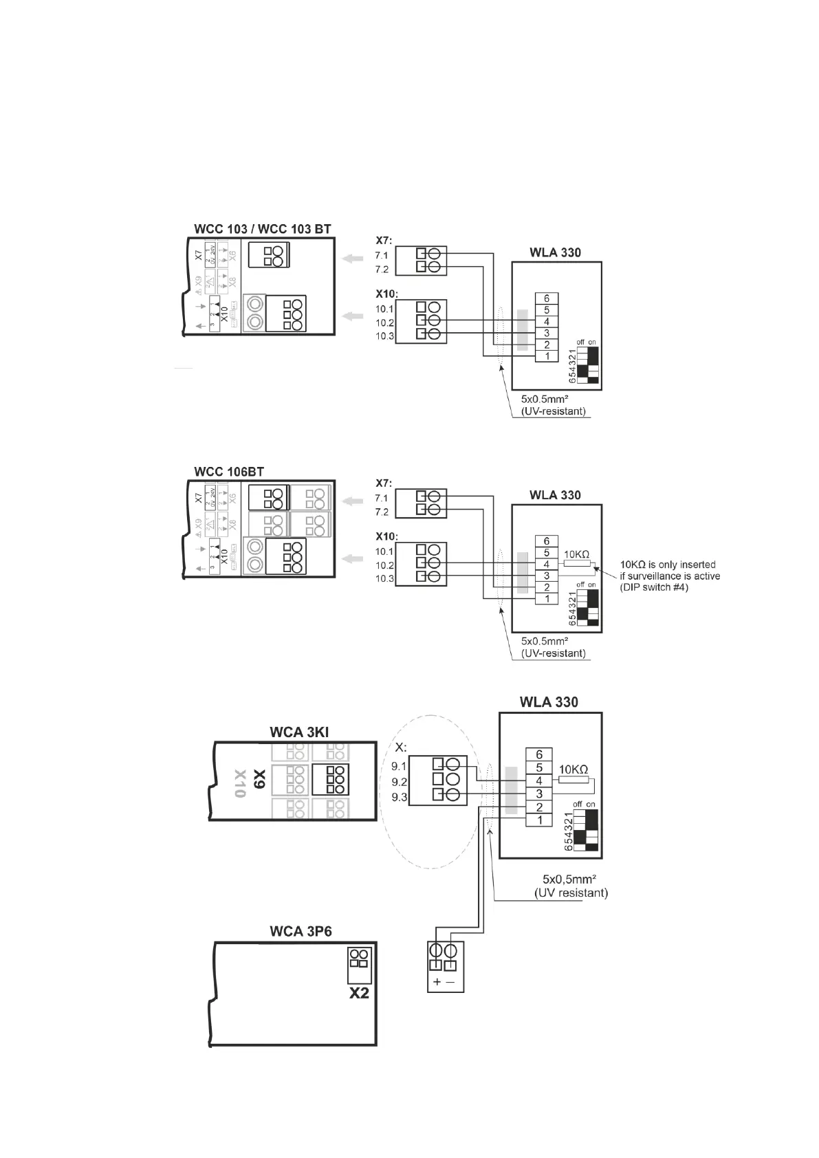
Connection to control units
WCC 103 / 103 BT
WCC 106 BT
WCC 3x0 Standard