EasyManua.ls Logo

Wolf 15" - 36 Framed Cooktop Installation; Standard Installation Side View; Standard Installation Front View; Countertop Cut-out Dimensions

Wolf 15"
20 pages
Print Icon
To Next Page IconTo Next Page
To Next Page IconTo Next Page
To Previous Page IconTo Previous Page
To Previous Page IconTo Previous Page
Loading...
Cooktop Specifications 11
wolfappliance.com/specs
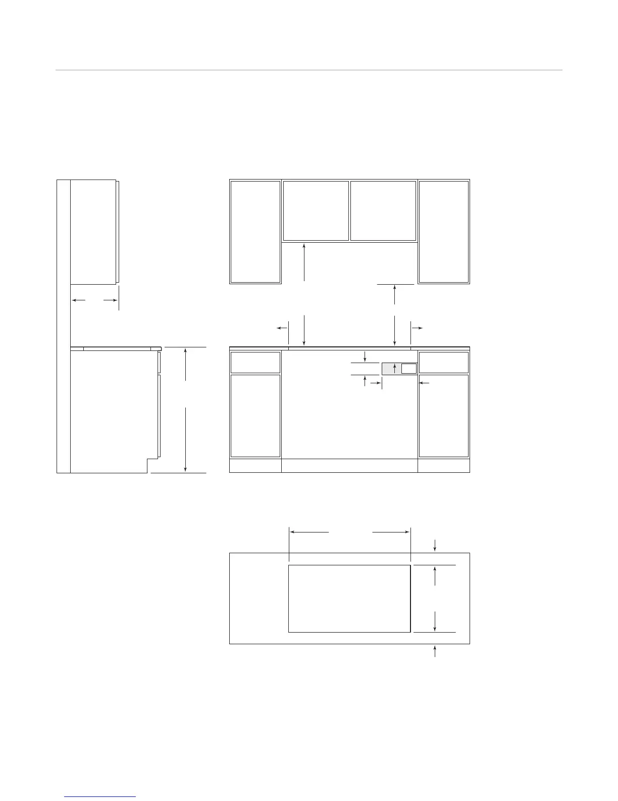
18" (457) min
36" (914)
FLOOR TO
COUNTERTOP
3
0"
(762) min
C
OUNTERTOP
T
O COMBUSTIBLE
M
ATERIALS
4
1
/2"
(
114
)
10" (254)
3
1
/2" (
89)
E
SEE COUNTERTOP
CUT-OUT BELOW
34
3
/8" (873)
CUT-OUT WIDTH
COUNTERTOP CUT-OUT
FRONT
19
1
/4" (489)
CUT-OUT
DEPTH
2
1
/2" (64) min
2" (51) T
O
COMBUSTIBLE
*
2" (51) T
O
COMBUSTIBLE
*
SIDE
CABINET
1
3"
(330)
max
2" (51) min*
FRONT VIEWSIDE VIEW
*Minimum clearance from cooktop cut-out to combustible materials up to 18" (457) above countertop.
NOTE: Electrical location applies only to installation with built-in oven.
36" (914) Framed Induction and Electric Cooktops
STANDARD INSTALLATION

Related product manuals