EasyManua.ls Logo

Wolf CT15I - Page 9

Wolf CT15I
16 pages
Print Icon
To Next Page IconTo Next Page
To Next Page IconTo Next Page
To Previous Page IconTo Previous Page
To Previous Page IconTo Previous Page
Loading...
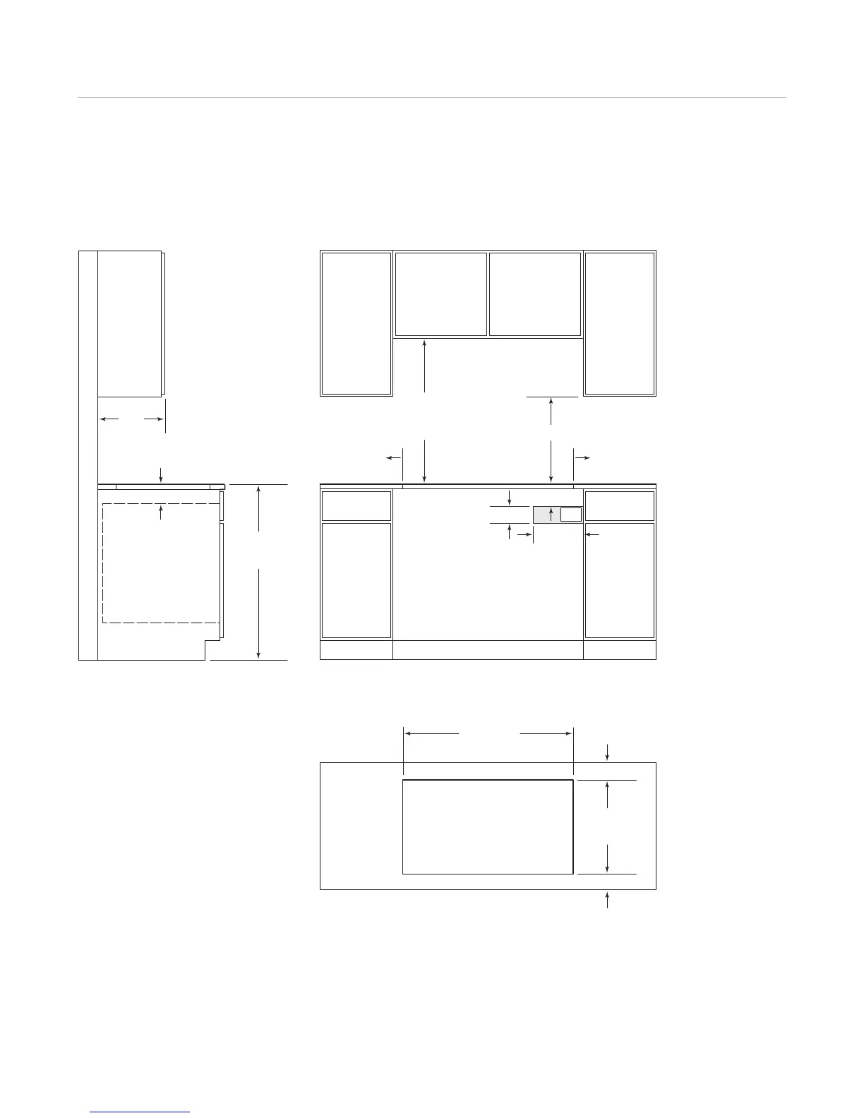
Induction Cooktop Specifications 9
wolfappliance.com/specs
18" (457) min
36" (914)
F
LOOR TO
COUNTERTOP
30" (762) min
C
OUNTERTOP
TO COMBUSTIBLE
MATERIALS
36-INCH OVEN
OPENING
4
1
/2"
(
114
)
10" (254)
3
1
/2" (89)
E
SEE COUNTERTOP
CUT-OUT BELOW
34
3
/8" (873)
CUT-OUT WIDTH
COUNTERTOP CUT-OUT
FRONT
19
1
/4" (489)
CUT-OUT
DEPTH
2
1
/2" (64) min
3
3
/4"
(
95
)
min
2" (51) T
O
COMBUSTIBLE
*
2" (51) T
O
COMBUSTIBLE
*
SIDE
CABINET
13" (330)
max
*Minimum clearance from cooktop cut-out to combustible materials up to 18" (457) above countertop.
NOTE: Electrical location applies only to installation with built-in oven.
2" (51) min*
36" (914) Framed Induction Cooktop
STANDARD INSTALLATION

Related product manuals