EasyManua.ls Logo

Wolf Drawer Microwave - Page 9

Wolf Drawer Microwave
12 pages
Print Icon
To Next Page IconTo Next Page
To Next Page IconTo Next Page
To Previous Page IconTo Previous Page
To Previous Page IconTo Previous Page
Loading...
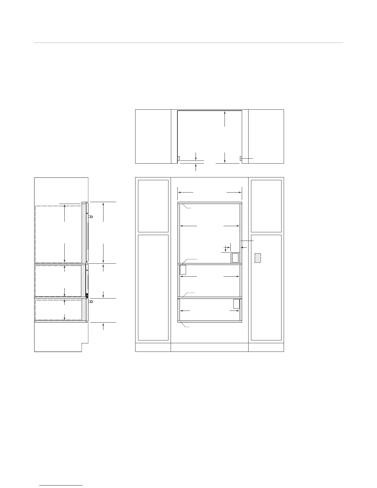
Drawer Microwave Oven Specifications 9
wolfappliance.com/specs
27
3
/1
6
"
(691)
OPENING
HEIGHT
28
1
/8"
(714) min
FLUSH INSET
HEIGHT
28
1
/2" (
724)
E
SERIES OVEN
OPENING WIDTH
30
3
/8" (
772) min
F
LUSH INSET WIDTH
28
1
/2" (724)
DRAWER MICROWAVE
OPENING WIDTH
E
7
/8"(22) T
OP CLEAT
9
/16" (14)
CLEAT
5
/8" (16) CLEAT
S
IDE CLEATS
24
3
/4"*
(
629) min
F
LUSH
INSET
DEPTH
1
1
/4" (
32)
*
FOR MICROWAVE
1" (25)* F
OR
O
VEN
AND WARMING
DRAWER
*For black glass model, increase dimension by
1
/4" (6).
NOTES: Minimum base support for oven 250 lbs
(113 kg).
Location of electrical supply within oven opening may require additional cabinet depth.
Cleats may be visible and should be finished to match cabinetry.
Dashed line represents profile of unit.
FRONT VIEWSIDE VIEW
TOP VIEW
14
3
/4" (375)
OPENING
HEIGHT
15
3
/8"
(391)
FLUSH INSET
HEIGHT
1" (25)
SIDE CLEATS
10
5
/8"
(270)
FLUSH INSET
HEIGHT
9
1
/8" (232)
OPENING HEIGHT
E
1" (25) BOTTOM CLEAT
28
5
/8" (727)
WARMING DRAWER
OPENING WIDTH
E
E
5"
(127)
4"
(102)
30" (762) Drawer Microwave Oven
FLUSH INSET INSTALLATION WITH E SERIES OVEN AND WARMING DRAWER

Related product manuals