EasyManua.ls Logo

Wolf RT484CG - Page 4

Wolf RT484CG
5 pages
Print Icon
To Next Page IconTo Next Page
To Next Page IconTo Next Page
To Previous Page IconTo Previous Page
To Previous Page IconTo Previous Page
Loading...
Planning Information
48" (1219) Gas Rangetops
MODELS RT488 / RT486C / RT486G / RT484CG / RT484DG / RT484F / RT482CF
Dimensions in parentheses are in
millimeters unless otherwise specified.
4
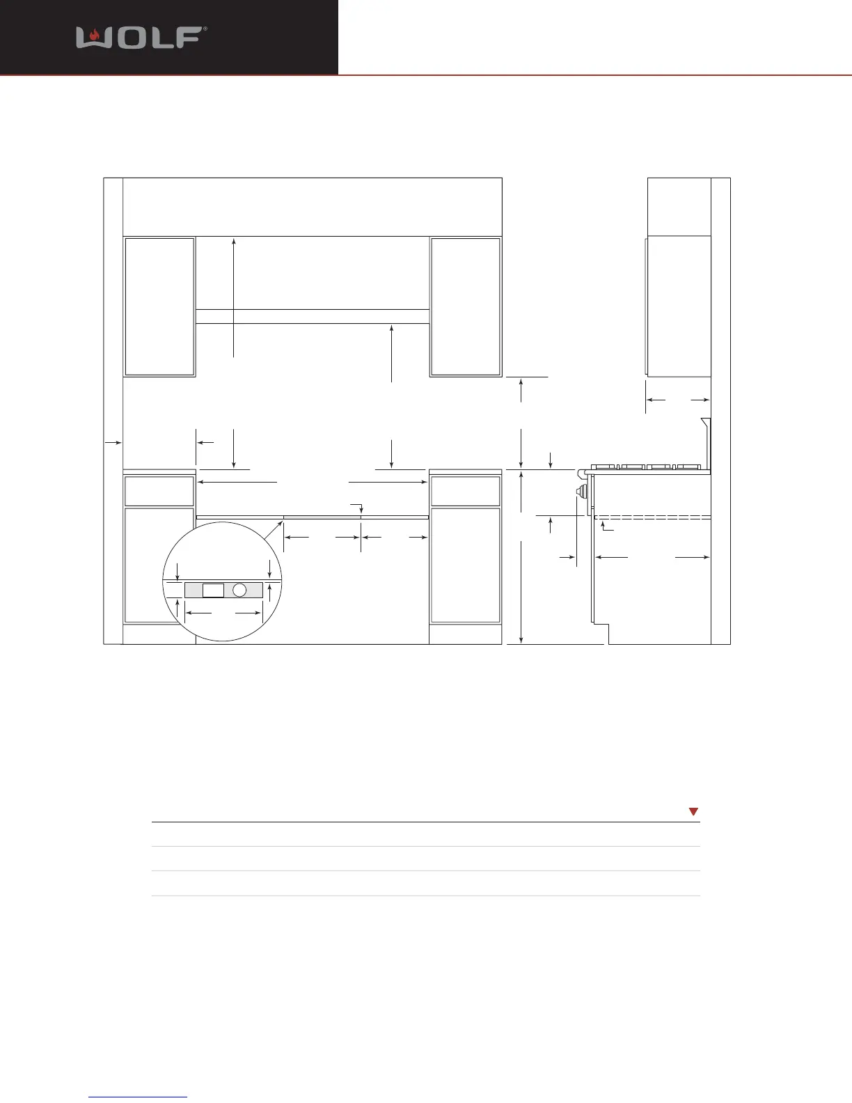
INSTALLATION SPECIFICATIONS
DIMENSIONS
Overall Width of Rangetop 48" (1219)
Finished Rough Opening Width 48
1
/4" (1226)
Location of Electrical and Gas Supply Within shaded area
See Installation Instructions shipped with unit for detailed specifications.
Refer to the Wolf Design Guide for additional specifications.
VENTILATION HOOD
14"
(356)
16"
(406)
LOCATION OF GAS AND
ELECTRICAL SUPPLY CUT-OUT
WITHIN SHADED AREA
THROUGH BOTTOM OF
PLATFORM
TOP VIEW
OF PLATFORM
E
G
16"
(406)
3"
(76)
BACK WALL
1
/2"
(13)
48
1
/4" (1226)
FINISHED ROUGH OPENING WIDTH
3
/4" (19) PLATFORM
6"min (152)
TO
COMBUSTIBLE
MATERIALS
(BOTH SIDES)
30"min (762)
TO
36"max (914)
COUNTERTOP
TO BOTTOM OF
VENTILATION HOOD
30"min (762)
COUNTERTOP
TO COMBUSTIBLE
MATERIALS
36"min (914)
FOR CHARBROILER
2
3
/4"
(70)
ISLAND INSTALLATIONS: 12" (305) MINIMUM
CLEARANCE FROM BACK OF RANGETOP TO
COMBUSTIBLE REAR WALL ABOVE COUNTERTOP–
0" (0) TO NON-COMBUSTIBLE MATERIALS
3
/4" (19) PLATFORM
9
1
/2" (241)
OPENING
HEIGHT
24" (610)
13" max
(330)
36"
(914)
18"min (457)
TO COUNTERTOP

Other manuals for Wolf RT484CG

Related product manuals