EasyManua.ls Logo

Wolf RT484CG - Page 8

Wolf RT484CG
84 pages
Print Icon
To Next Page IconTo Next Page
To Next Page IconTo Next Page
To Previous Page IconTo Previous Page
To Previous Page IconTo Previous Page
Loading...
8
W OLF B UILT-IN O VENS
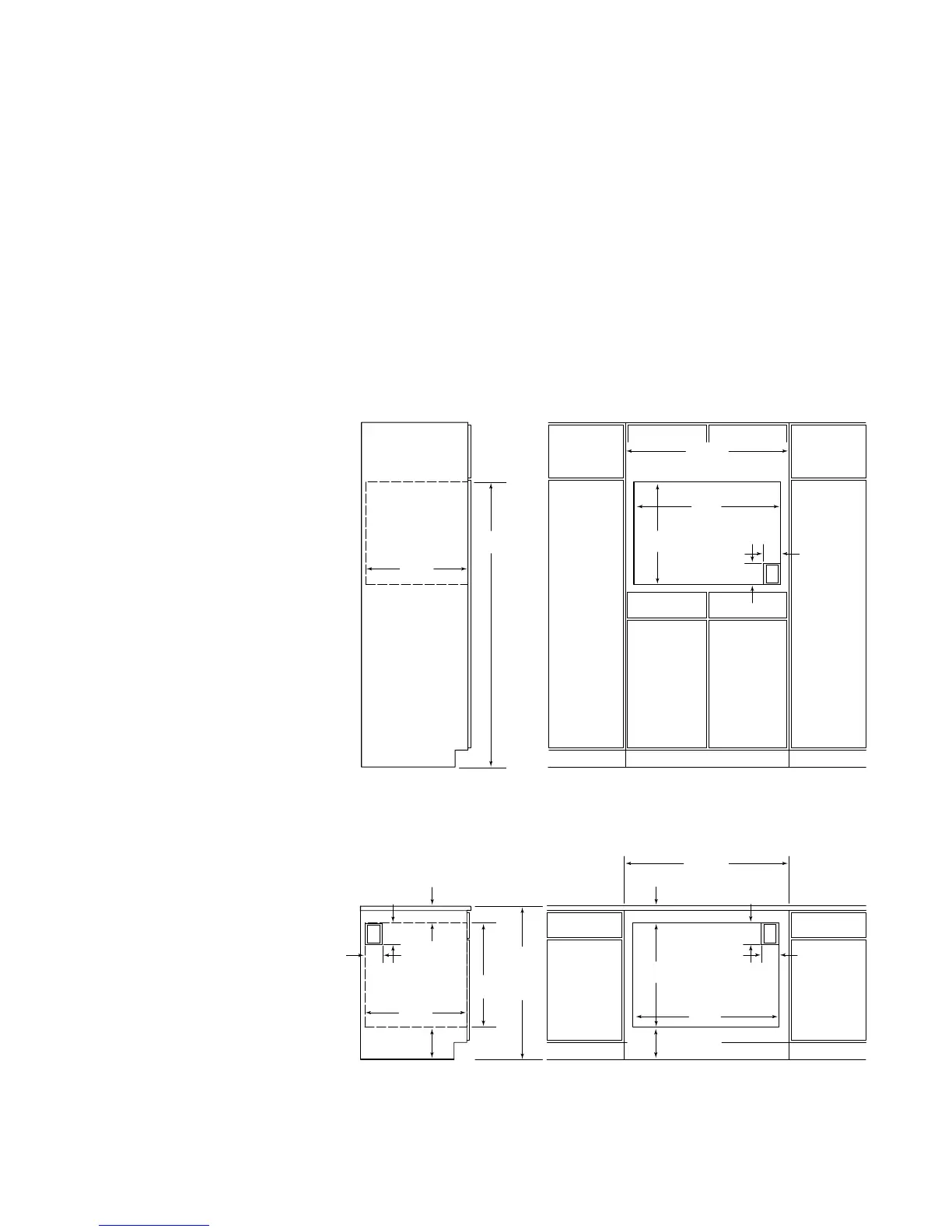
Rough opening and electrical placement for 36" (914) single oven – undercounter
installation.
24"min
(610)
24
1
/16"
(611)
34
1
/2"
(876 )
5"
(127)
4"
(102)
E
39"(991)
RECOMMENDED CABINET WIDTH
36"min (914)
67"max
(1702)
CABINET SIDE VIEW
24
1
/16"
(611)
24
1
/16"
(611)
3
3
/4"min (95)
E
5"
(127)
4"
(102)
24"min
(610)
E
5"
(127)
3
3
/4"min
(95)
39"(991)
RECOMMENDED CABINET WIDTH
36"min (914)
34
1
/2"
(876 )
ELECTRICAL
LOCATION IN
ADJACENT RIGHT
SIDE CABINET
4"
(102)
36"(914)
STANDARD
FLOOR TO
COUNTER
HEIGHT
7
3
/4"(197) rec
4
3
/4"(121) min
7
3
/4"(197) rec
4
3
/4"(121) min
36" (914) SINGLE OVEN
Wolf recommends using 39" (991)
cabinets with the 36" (914) built-in
oven. Also, you need a minimum 24"
(610) of usable cabinet depth. The
bottom cabinet support must be able
to support 250 lbs (113 kg).
The Wolf 36" (914) built-in oven has
a face trim on all four sides and will
overlap stiles and rails. The trim
overlaps 3/16" (5) on the bottom,
5/16" (8) on the top and 3/4" (19)
on each side.
Electrical Requirements
The 36" (914) built-in oven requires a
separate, grounded 4-wire 240V, 30
amp service with its own circuit
breaker. It is provided with a 3' (.9 m)
flexible 4-wire conduit for connection
at the electrical supply. Locate electri-
cal within the shaded area shown in
the illustration. The electric rating is
5.1 Kw at 240V and 3.8 Kw at 208V
with a minimum 30 amp service.
IMPORTANT NOTE: The electrical
supply must be flush with the back
wall to allow for proper installation.
The electrical supply can be placed in
an adjacent cabinet as long as it is
within reach of the 3' (.9 m) conduit,
and a 2" (51) diameter hole is
provided. For a 24" (610) depth
cabinet application, electrical conduit
must be kept to the right (viewed
from front of cabinet) for a flush
installation.
Rough opening and electrical placement for 36" (914) single oven – wall application.
You must follow all National Electrical
Code regulations. In addition, be
aware of local codes and ordinances
when installing your service.
Dimensions in parentheses are in millimeters unless otherwise specified.
The Wolf 36" (914) single oven may
be installed below a Wolf electric or
gas cooktop. Refer to the electric and
gas cooktops sections for additional
specifications. A built-in oven cannot
be installed below a Wolf rangetop.

Other manuals for Wolf RT484CG

Related product manuals