EasyManua.ls Logo

Wolf RT488 - Page 13

Wolf RT488
84 pages
Print Icon
To Next Page IconTo Next Page
To Next Page IconTo Next Page
To Previous Page IconTo Previous Page
To Previous Page IconTo Previous Page
Loading...
13
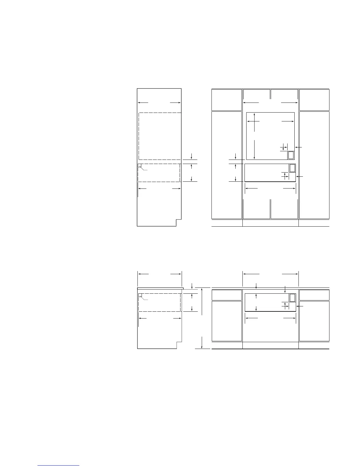
W OLF W ARMING D RAWERS
Pre-installation specifications for warming drawer with integrated drawer front –
undercounter installation.
10
3
/8"*
(264)
29
15
/16"* (760)
ROUGH OPENING WIDTH
E
5"
(127)
4"
(102)
25
1
/2"min (648)
ROUGH OPENING DEPTH
33"min (838)
CABINET WIDTH
26"min (660)
CABINET DEPTH
*Dimension may vary by
+_
1/8" (3)
2
3
/8"
(60)
36"(914)
STANDARD
FLOOR TO
COUNTER
HEIGHT
10
3
/8"*
(264)
2
3
/8"
(60)
2"(51) x 2"(51)
ANTI-TIP BLOCK
CABINET SIDE VIEW
27
3
/16"
(691)
28
1
/2" (724)
OVEN ROUGH
OPENING WIDTH
5"
(127)
4"
(102)
E
29
15
/16"* (760)
ROUGH OPENING WIDTH
WARMING DRAWER
E
5"
(127)
4"
(102)
25
1
/2"min (648)
ROUGH OPENING DEPTH
WARMING DRAWER
33"min (838)
CABINET WIDTH
26"min (660)
CABINET DEPTH
*Dimension may vary by
+_
1/8" (3)
2
3
/8"
(60)
2"(51) x 2"(51)
ANTI-TIP BLOCK
10
3
/8"*
(264)
2
3
/8"
(60)
10
3
/8"*
(264)
CABINET SIDE VIEW
Pre-installation specifications for warming drawer with integrated drawer front –
installation below 30" (762) oven.
Integrated Drawer Front
IMPORTANT NOTE:
A minimum
33" (838) wide by 26" (660) deep
cabinet is required for the warming
drawer with integrated drawer
front.
The Wolf warming drawer with an
integrated drawer front can accom-
modate installations with a 30" (762)
or 36" (914) wide cooktop. It may
also be installed in combination with
a 30" (762) or 36" (914) single oven
and microwave oven with 30" (762)
or 36" (914) trim. Refer to the
illustration on page 16. Dimensions
will vary according to the specific
installation.
Keep in mind that the width of the
custom panel for the warming drawer
with integrated drawer front will vary
according to the specific installation.
The rough opening width will remain
29-15/16" (760) whether installed in
combination with a 30" (762) or 36"
(914) cooktop or oven.
The decorative wood drawer front
panel must be a minimum of 1/2"
(13) thick.
Refer to the installation instructions
provided with the integrated drawer
front for detailed specifications. These
instructions can also be found on the
Wolf website.

Other manuals for Wolf RT488

Related product manuals