EasyManua.ls Logo

Wolf RT488 - Page 18

Wolf RT488
84 pages
Print Icon
To Next Page IconTo Next Page
To Next Page IconTo Next Page
To Previous Page IconTo Previous Page
To Previous Page IconTo Previous Page
Loading...
28
1
/2" (724)
WARMING DRAWER
ROUGH OPENING WIDTH
28
1
/2" (724)
30-INCH OVEN
ROUGH OPENING WIDTH
5"
(127)
5"
(127)
4"
(102)
4"
(102)
E
E
E
13
1
/2"
(343)
13
3
/4"
(349)
CENTER LINE OF CABINET
27
1
/4" (692)
MICROWAVE
ROUGH OPENING WIDTH
1
1
/2" (38)
(30" CABINET)
1
1
/4" (32)
(30" CABINET)
ALLOW FOR
5
/8" OVERLAP
ON ALL SIDES
9
1
/4" (235)
2
3
/8"
(60)
23
1
/2"min
(597)
2" x 2" ANTI-TIP
BLOCK AGAINST
REAR OF CUT-OUT
27
3
/16"
(691)
16
1
/2"
(419)
1
1
/4"
(32)
24"min
(610)
21"min
(533)
33" (838)
RECOMMENDED CABINET WIDTH
30"min (762)
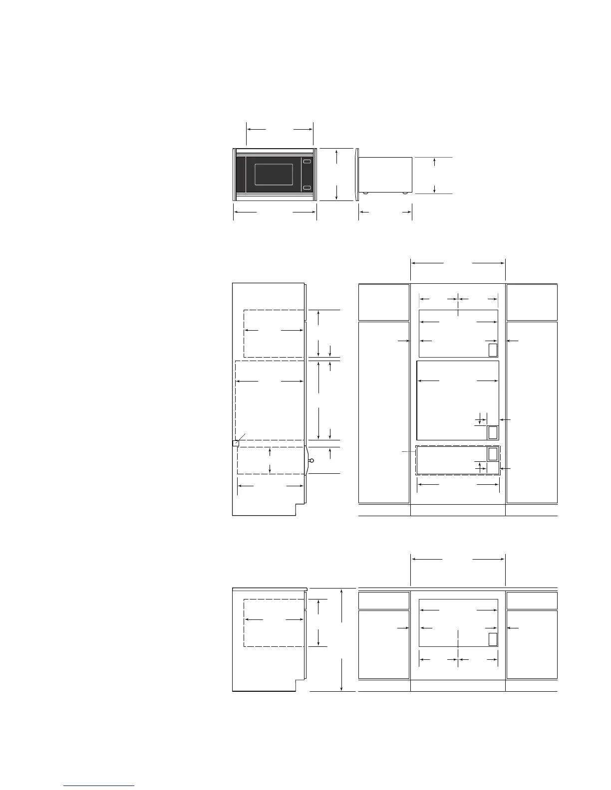
Non-Convection Microwave Oven – Overall Dimensions with 30" (762) Trim
18
3
/4" (476)
TRIM
HEIGHT
19
1
/8" (486)
BEHIND FRAME
29
7
/8" (759)
30" (762) TRIM WIDTH
24" (610)
FREESTANDING
WIDTH
13
3
/8" (340)
FREESTANDING
HEIGHT
18
PLANNING
INFORMATION
The Wolf non-convection microwave
oven can be used freestanding or
with optional 30" (762) trim, can be
built-in to fit above a Wolf 30" (762)
single oven and/or 30" (762)
warming drawer with stainless steel
drawer front.
The following illustrations will give
you an idea of the overall size that
you need to plan for in your installa-
tion. They also provide the finished
rough opening dimensions for the
trim kit. The base platform must be
able to support 125 lbs (57 kg).
IMPORTANT NOTE: In all instances,
where the microwave oven is built-in,
you must use the Wolf 30" (762) trim
kit to ensure proper ventilation.
Refer to the installation instructions
provided with the trim kit for detailed
specifications. These instructions can
also be found on the Wolf website.
When using the Wolf microwave oven
as a freestanding unit, allow 2" (51)
of airflow space on top, rear and both
sides. A minimum 21" (533) cabinet
depth is required.
Electrical Requirements
The Wolf non-convection microwave
oven requires a separate, grounded
110/120V, 60 Hz power supply. The
service should have its own 15 amp
circuit breaker and a grounded
3-prong receptacle should be located
within the reach of the 3' (.9 m)
power cord.
IMPORTANT NOTE: A ground fault
circuit interrupter (GFCI) is not
recommended and may cause inter-
ruption of operation.
You must follow all National Electrical
Code regulations. In addition, be
aware of local codes and ordinances
when installing your service.
W OLF N ON-CONVECTION M ICROWAVE O VEN
33"(838)
RECOMMENDED CABINET WIDTH
30"min (762)
E
13
1
/2"
(343)
13
3
/4"
(349)
CENTER LINE OF CABINET
27
1
/4" (692)
ROUGH OPENING
WIDTH
1
1
/2" (38)
(30" CABINET)
1
1
/4" (32)
(30" CABINET)
21"min
(533)
16
1
/2"
(419)
36"(914)
STANDARD
FLOOR TO
COUNTER
HEIGHT
CABINET SIDE VIEW
Pre-installation specifications for non-convection microwave oven with 30" (762) trim –
undercounter installation.
Pre-installation specifications for non-convection microwave with trim – installation
above 30" (762) oven and 30" (762) warming drawer with stainless steel drawer front.

Other manuals for Wolf RT488

Related product manuals