EasyManua.ls Logo

Wolf RT488 - Page 33

Wolf RT488
84 pages
Print Icon
To Next Page IconTo Next Page
To Next Page IconTo Next Page
To Previous Page IconTo Previous Page
To Previous Page IconTo Previous Page
Loading...
29" (737)
COOKTOP CUT-OUT WIDTH
30"
(762)
29" (737)
COOKTOP CUT-OUT WIDTH
13"
(330)
G
33" (838)
RECOMMENDED
CABINET WIDTH
30"min (762)
FRONT OF COUNTERTOP
2
1
/2"min
(64)
19
1
/4" (489)
COOKTOP
CUT-OUT DEPTH
4"(102)
10"
(254)
3
1
/2"(89)
3
1
/2"min
(89)
E
G
E
4"
(102)
10"
(254)
3
1
/2"(89)
* Minimum 24" (610) from protected cabinet or 30" (762) from unprotected cabinet to cooking surface.
** Minimum clearance from side edge of cooktop cut-out to combustible surface up to 18" (457) above cooking surface.
ELECTRICAL
LOCATION IN
ADJACENT RIGHT
SIDE CABINET
4
3
/4"min
(121)
19
1
/4" (489)
COOKTOP CUT-OUT
DEPTH
2
1
/2"min
(64)
24" OR 30"*
(610 or 762)
TO COOKING
SURFACE
24"min
(610)
36"(914)
STANDARD
FLOOR TO
COUNTER
HEIGHT
18"
(457)
9"**
(229)
9"**
(229)
18"
(457)
30-INCH OVEN
ROUGH OPENING
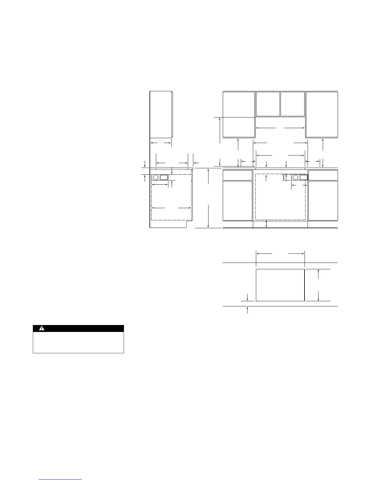
Cut-out dimensions, electrical and gas placement for 30" (762) gas cooktop above
30" (762) single oven.
33
W OLF G AS C OOKTOPS
30" (762) GAS COOKTOP
Wolf recommends using 33" (838)
cabinets with the 30" (762) cooktop.
A Wolf 30" (762) single oven may be
installed below the 30" (762) gas
cooktop. Refer to the illustration for
specifics on cut-out dimensions and
placement of gas and electrical. Also
be aware of the depth of the cooktop
when planning for this installation.
When an oven is installed below the
cooktop, it is recommended that
the gas and electrical supply be
placed in the adjacent base cabinet
within the shaded area shown in the
illustration. The top right area in the
oven cavity is available, but will make
installation difficult. The bottom
cabinet support must be able to
support 250 lbs (113 kg).
When a gas cooktop is installed
above cabinets, the gas and electrical
placement is not critical. A grounded
outlet needs to be placed within 4'
(1.2 m) of the right rear of the
cooktop.
When multiple cooktop units are
installed side by side, refer to the
countertop cut-out dimensions on
page 35.
WARNING
This cooktop is intended for
indoor use.

Other manuals for Wolf RT488

Related product manuals