EasyManua.ls Logo

Wolf RT488 - Page 55

Wolf RT488
84 pages
Print Icon
To Next Page IconTo Next Page
To Next Page IconTo Next Page
To Previous Page IconTo Previous Page
To Previous Page IconTo Previous Page
Loading...
55
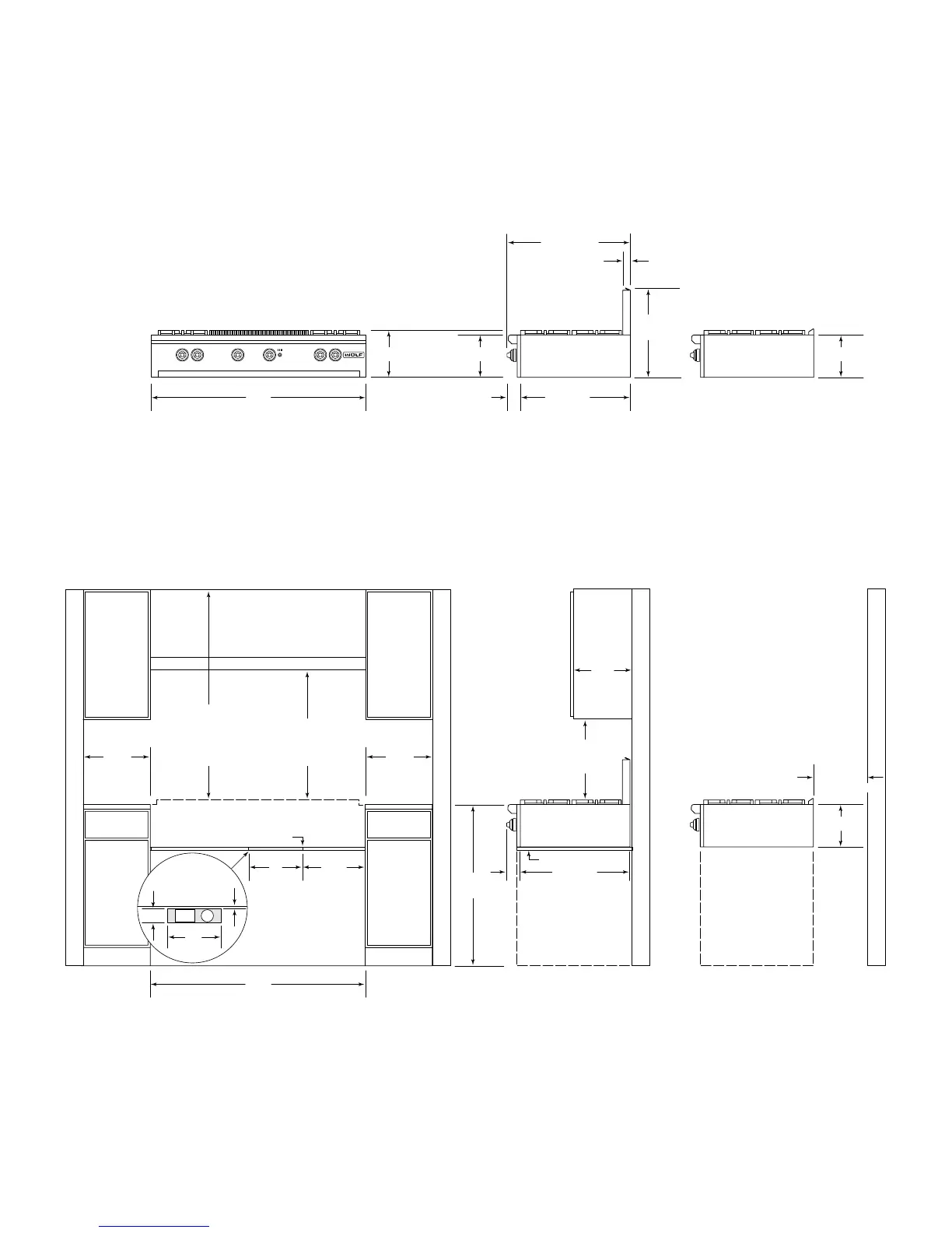
*30"min (762)
SURFACE BURNERS
AND GRIDDLE
*36"min (914)
CHARBROILER
30"(762) TO 36"(914)
COOKING SURFACE TO
BOTTOM OF
VENTILATION HOOD
VENTILATION HOOD
COMBUSTIBLE CONSTRUCTION
18"min (457)
TO COOKING
SURFACE
13"max
(330)
CABINET
DEPTH
B
FINISHED ROUGH OPENING WIDTH
COOKING SURFACE
6"min
(152)
TO
COMBUSTIBLE
MATERIALS
6"min
(152)
TO
COMBUSTIBLE
MATERIALS
*
MINIMUM DISTANCE FROM COOKING SURFACE TO BOTTOM OF COMBUSTIBLE CONSTRUCTION
36"max
(914)
ISLAND INSTALLATION:
NO SIDE WALL OR REAR WALL
ABOVE COOKING SURFACE
PENINSULA INSTALLATION:
NO SIDE WALL ABOVE
COOKING SURFACE
**
12" (305) MINIMUM CLEARANCE TO
COMBUSTIBLE MATERIALS –
0" (0) TO NON-COMBUSTIBLE MATERIALS
**
ISLAND
INSTALLATION
9
1
/2" (241)
14"
(356)
C
LOCATE ELECTRICAL AND
GAS SUPPLY WITHIN
SHADED AREA THROUGH
BOTTOM OF PLATFORM
TOP VIEW
OF PLATFORM
E
G
C
3"(76)
BACK WALL
1
/2"
(13)
24" (610)
2
3
/4"
(70)
3
/4" (19) PLATFORM
3
/4" (19) PLATFORM
A
OVERALL WIDTH
20"
(508)
10
1
/2" (267)
RISER
24" (610)
27
1
/4" (692)
OVERALL DEPTH
(to knobs)
10
1
/2" (267)
2
3
/4"
(70)
(to knobs)
COOKING
SURFACE
9
1
/2" (241) 9
1
/2" (241)
ISLAND OR PENINSULA
INSTALLATION
1
3
/4"
(44)
INSTALLATION DIMENSIONS
W OLF G AS R ANGETOPS
NOTE: Refer to the chart on the previous page for dimensions referenced by letters in the illustrations.
Dimensions in parentheses are in millimeters unless otherwise specified.

Other manuals for Wolf RT488

Related product manuals