EasyManua.ls Logo

Wolf Sub-Zero ICBIG15/S - Page 49

Wolf Sub-Zero ICBIG15/S
72 pages
Print Icon
To Next Page IconTo Next Page
To Next Page IconTo Next Page
To Previous Page IconTo Previous Page
To Previous Page IconTo Previous Page
Loading...
49
WOLF GAS RANGES
SPECIFICATIONS
762 mm Gas Range
Overall Width 762 mm
Overall Height
(to cooking surface) 940 mm
Overall Depth 721 mm
Overall Oven
Interior Capacity 125 L
Overall Interior Dim 610 mm x 473 mm
(W x H x D) x 432 mm
Usable Interior Dim 610 mm x 419 mm
(W x H x D) x 432 mm
Opening Width 768 mm
Electrical Supply 220-240 V AC, 50/60 Hz
15 amp dedicated circuit
Power Cord 1.8 m 3-prong
Shipping Weight 147 kg
MODEL OPTIONS
762 mm Gas Range
Four Surface
Burners IR304
Natural gas model listed;
for LP gas add (-LP) to the
model number.
IMPORTANT NOTE: A
minimum 127 mm riser is
required when installing a
762 mm gas range against
a combustible surface.
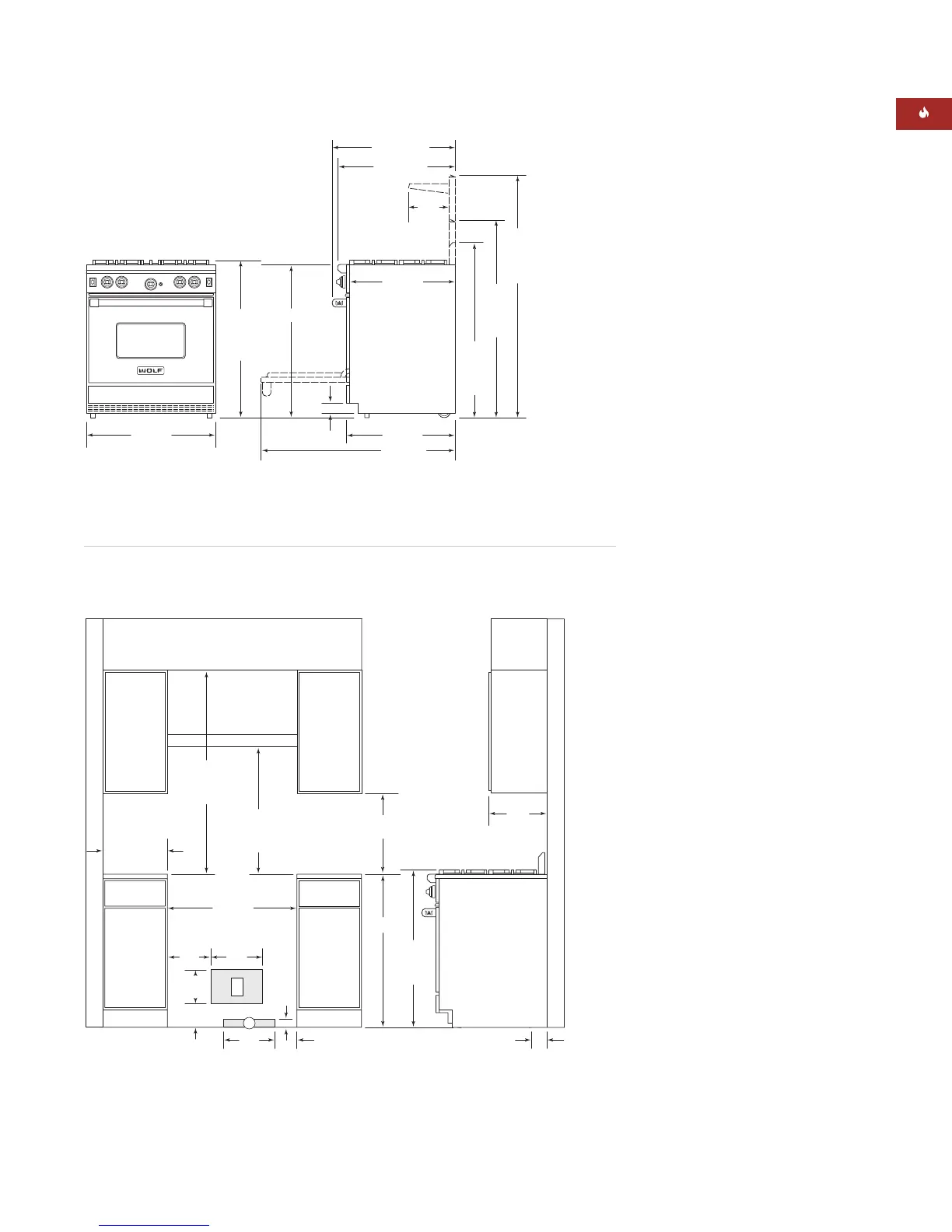
INSTALLATION
Refer to installation
instructions shipped with
each Wolf product for
detailed specifications.
762 mm min
COUNTERTOP
TO COMBUSTIBLE
MATERIALS
762 mm TO 914 mm
COUNTERTOP
TO BOTTOM OF
VENTILATION HOOD
VENTILATION
HOOD
768 mm
FINISHED ROUGH
OPENING WIDTH
ISLAND INSTALLATIONS: 305 mm MINIMUM CLEARANCE FROM BACK
OF RANGE TO COMBUSTIBLE REAR WALL ABOVE COUNTERTOP –
0 mm TO NON-COMBUSTIBLE MATERIALS
G
127 mm
51
mm
305
mm
E
305
mm
254
mm
140 mm
203
mm
LOCATION OF GAS SUPPLY EXTENDS
76 mm ON FLOOR FROM BACK WALL
76
mm
914 mm
457 mm min
TO COUNTERTOP
940 mm
TO
COOKING
SURFACE
330 mm
max
152 mm min
TO
COMBUSTIBLE
MATERIALS
(BOTH SIDES)
762 mm
OVERALL WIDTH
914 mm
940 mm
OVERALL
HEIGHT TO
COOKING
SURFACE
64 mm
622 mm
641 mm
LEGS AND CASTERS ALLOW
25 mm HEIGHT ADJUSTMENT
1102 mm
1187
mm
WITH
254 mm
RISER
1441
mm
WITH
508 mm
RISER
692 mm
235
mm
721 mm
OVERALL DEPTH
1060
mm
WITH
127 mm
RISER
INSTALLATION SPECIFICATIONS
762 mm Gas Range
OVERALL DIMENSIONS
762 mm Gas Range
Unit dimensions may vary to ± 3 mm.

Related product manuals