EasyManua.ls Logo

Wolf Sub-Zero ICBIG15/S - Page 64

Wolf Sub-Zero ICBIG15/S
72 pages
Print Icon
To Next Page IconTo Next Page
To Next Page IconTo Next Page
To Previous Page IconTo Previous Page
To Previous Page IconTo Previous Page
Loading...
64
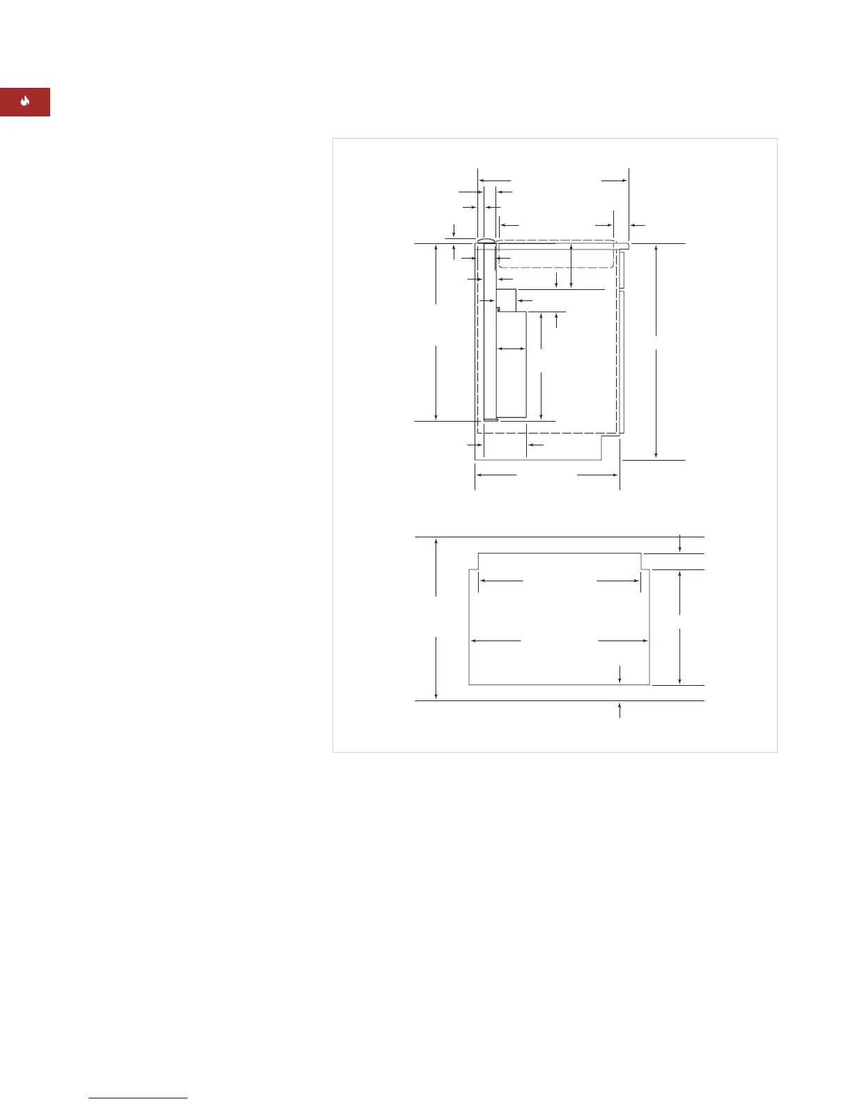
54 mm
489 mm
COOKTOP CUT-OUT
DEPTH
686 mm
FOR MODEL DD30
838 mm
FOR MODEL DD36
1067 mm
FOR MODEL DD45
914 mm
60 mm
638 mm min
OF FLAT COUNTERTOP
*
8.7 mm
745 mm
COUNTERTOP
TO BOTTOM OF
AIR BOX
457
mm
92
mm
83 mm
127
mm
197 mm
16 mm
64 mm min
WITH NO
RAISED LIP
*
*
AREAS OF POTENTIAL INTERFERENCE
64 mm min
70 mm
COOKTOP CUT-OUT
WIDTH
610 mm min
CABINET DEPTH
44 mm min
BACK EDGE
OF COOKTOP
TO INSIDE OF
CABINET BACK
*
181 mm
638 mm min
FLAT
COUNTERTOP
SPACE
489 mm
COUNTERTOP TOP VIEW
INSTALLATION SPECIFICATIONS
Downdraft Systems
SPECIFICATIONS
Models DD30I / DD30R
Overall Width 762 mm
Overall Height 230 mm
(above countertop)
Overall Depth 60 mm
Duct Size (DD30I) 83 mm x 254 mm
Duct Size (DD30R) 83 mm x 356 mm
Discharge Adjustable
Blower (DD30I) 500 CFM Internal
Blower Options* 1100 CFM In-Line,
(DD30R) 900, 1200 or 1500 CFM
Remote
Electrical Supply 220-240 V AC, 60 Hz
15 amp dedicated circuit
Power Cord .8 m 3-prong
Shipping Weight 34 kg
SPECIFICATIONS
Models DD36I / DD36R
Overall Width 914 mm
Overall Height 230 mm
(above countertop)
Overall Depth 60 mm
Duct Size (DD36I) 83 mm x 254 mm
Duct Size (DD36R) 83 mm x 356 mm
Discharge Adjustable
Blower (DD36I) 500 CFM Internal
Blower Options* 1100 CFM In-Line,
(DD36R) 900, 1200 or 1500 CFM
Remote
Electrical Supply 220-240 V AC, 60 Hz
15 amp dedicated circuit
Power Cord .8 m 3-prong
Shipping Weight 36 kg
WOLF COOKTOP VENTILATION
SPECIFICATIONS
Models DD45I / DD45R
Overall Width 1156 mm
Overall Height 230 mm
(above countertop)
Overall Depth 60 mm
Duct Size (DD45I) 83 mm x 254 mm
Duct Size (DD45R) 83 mm x 356 mm
Discharge Adjustable
Blower (DD45I) 500 CFM Internal
Blower Options* 1100 CFM In-Line,
(DD45R) 900, 1200 or 1500 CFM
Remote
Electrical Supply 220-240 V AC, 60 Hz
15 amp dedicated circuit
Power Cord .8 m 3-prong
Shipping Weight 39 kg
*Refer to the cooktop ventilation
recommendations on pages 68–69.

Related product manuals