EasyManua.ls Logo

Wolf WWD30 - Stainless Steel Drawer Front Optional Installations; Combination and Side-by-Side Installations

Wolf WWD30
20 pages
Print Icon
To Next Page IconTo Next Page
To Next Page IconTo Next Page
To Previous Page IconTo Previous Page
To Previous Page IconTo Previous Page
Loading...
7
Dimensions in parentheses are in
millimeters unless otherwise specified.
INSTALLATION INSTRUCTIONS
28
5
/8" (727)
WARMING DRAWER
OPENING WIDTH
28
1
/2" (724)
30-INCH OVEN
OPENING WIDTH
5"
(127)
4"
(102)
E
E
MICROWAVE
ROUGH OPENING
33" (838)
RECOMMENDED CABINET WIDTH
30"min (762)
2
3
/8"
(60)
27
3
/16"
(691)
1"min
(25)
24"min
(610)
27
3
/16"
(691)
NOTE: Refer to the built-in 30" (762) single oven specifications for electrical location.
2"(51) x 2"(51)
ANTI-TIP BLOCK
9
1
/8" (232)
OPENING
HEIGHT
23
7
/8"min (606)
OPENING DEPTH
1"min
(25)
24"min
(610)
9
1
/8" (232)
OPENING
HEIGHT
23
7
/8"min (606)
OPENING DEPTH
ANTI-TIP BLOCK APPLICATIONPLATFORM APPLICATION
7
/8" (22)
PLATFORM
7
/8"
(22)
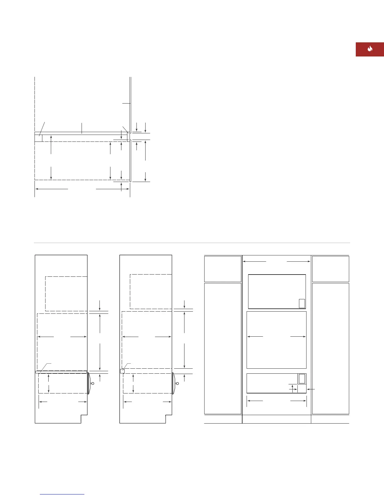
Installation with Built-In Oven and Microwave – Stainless Steel Drawer Front
OPTIONAL INSTALLATIONS
T
he Wolf warming drawer with stainless steel
drawer front may be installed in combination
with a 30" (762) single oven and microwave
o
ven with 30" (762) trim, provided the
warming drawer is fully enclosed, top and
bottom. Refer to the illustration below. Also
refer to installation instructions provided with
the built-in oven and microwave for additional
specifications. Dimensions will vary according
to the specific installation.
The warming drawer platform must be able to
support 200 lbs (91 kg). It must be a minimum
of 1" (25) above the toe kick to allow for the
overlap of the warming drawer trim.
The Wolf warming drawer with stainless steel
drawer front may be installed next to or above
another Wolf warming drawer, provided each
unit is fully enclosed, top and bottom.
9
1
/8"
(232)
10
3
/4"
(273)
1
0
1
/4"
(
260)
WARMING DRAWER
ROUGH OPENING
3
/4" (19) THICK WALL OVEN
SUPPORT PLATFORM
OVEN TRIM EXTENDS
1
/8" (
3)
B
ELOW OVEN PLATFORM
OVEN ROUGH OPENING
S
IDE VIEW
FRONT
2" x 2"
ANTI-TIP
BLOCK
FACE RAIL
5
/8"
(
16)
23
5
/8" (600)
1
5
/8"
(41)
REVEAL
2
3
/8"
(60)
5
/8"
(16)
Installation with Built-In Oven – Stainless Steel
Drawer Front
STAINLESS STEEL DRAWER FRONT

Other manuals for Wolf WWD30

Related product manuals