EasyManua.ls Logo

Yale ESC030AC - Page 97

Yale ESC030AC
134 pages
Print Icon
To Next Page IconTo Next Page
To Next Page IconTo Next Page
To Previous Page IconTo Previous Page
To Previous Page IconTo Previous Page
Loading...
STATUS
CODE
DISPLAY MESSAGE RECOVERY METHOD CIRCUIT
29456-3, 4 29456 Return to Neutral LH or RH Traction
Node 3 ( 4 )
DESCRIPTION BEHAVIOR
Motor Encoder Locked - (LH Node 4, RH Node 3) Traction speed limited to limp mode.
Probable Causes and Test Procedures
1. Verify limited traction operation, by giving maximum throttle, and the truck is limited to Mode 1 speed.
a. Is the truck is limited to Mode 1 speed?
YES- Proceed to step 2.
NO- Proceed to step 1b.
b. Does the traction move at all? (Not Stalled)
YES- Proceed to step 2.
NO- Proceed to step 9.
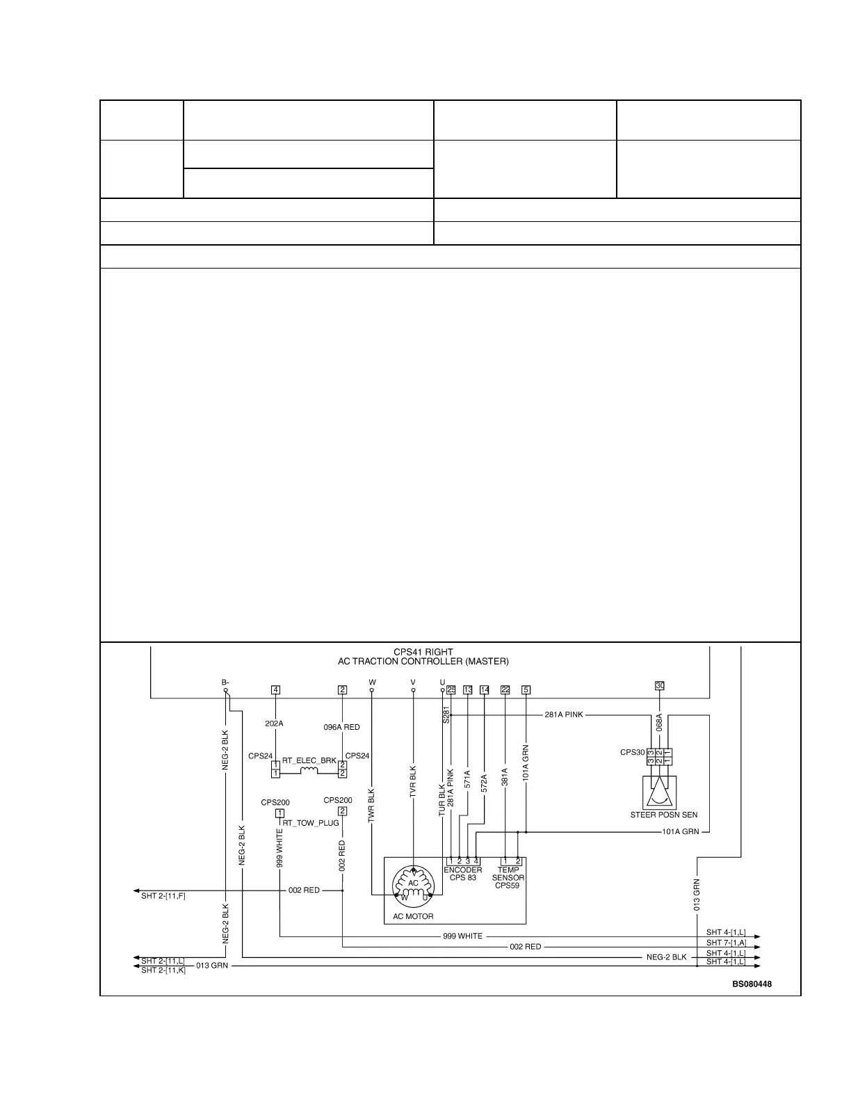
2. Check Encoder Output Value:
a. Utilizing PC Service tool or diagnostic menu, select (LH or RH) motor Hz.
b. Slowly increase throttle and verify a proportional and linear increase in frequency (Hz) as the motor
increases in speed. Check both directions.
YES- Proceed to step 9.
NO- Loss of proper encoder signal, or intermittent, proceed to step 3.
3. Check physical encoder connector and pins for damage.
a. Are there any bent / broken pins, poor seating, or wiring damage?
YES- Replace any bent / broken pins, with new properly crimped connections.
NO- Proceed to step 4.
2200 YRM 1415 Troubleshooting
93

Related product manuals