EasyManua.ls Logo

Yale MCW040-E - Installation; Inspection of Masts and Lift Chains

Yale MCW040-E
98 pages
Print Icon
To Next Page IconTo Next Page
To Next Page IconTo Next Page
To Previous Page IconTo Previous Page
To Previous Page IconTo Previous Page
Loading...
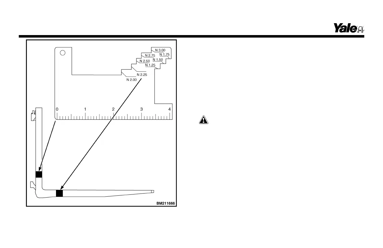
Figure 17. Fork Wear Check
Installation
Hook Forks - Move the fork and carriage so that the top
hook on the fork can engage the top carriage bar. Raise
the carriage to move the lower hook through the fork
removal notch. Slide the fork on the carriage so that both
upper and lower hooks engage the carriage. Engage the
lock pin with a notch in the top carriage bar.
Inspection of Masts and Lift Chains
WARNING
Do not try to correct fork tip alignment by bending the
forks or adding shims. Never repair damaged forks by
heating or welding. Forks are made of special steel
using special procedures. Replace damaged forks.
1. Inspect the welds on the mast and carriage for cracks.
Make sure that the nuts and bolts are tight.
2. Inspect the channel for excessive wear in the areas of
roller contact. Check the rollers for wear or damage.
3. Inspect the load backrest for cracks and damage.
4. Replace any damaged or broken parts that are used to
keep the forks locked in position.
Maintenance
68

Related product manuals