EasyManua.ls Logo

Yale RH00330G

Yale RH00330G
23 pages
To Next Page IconTo Next Page
To Next Page IconTo Next Page
To Previous Page IconTo Previous Page
To Previous Page IconTo Previous Page
Loading...
12
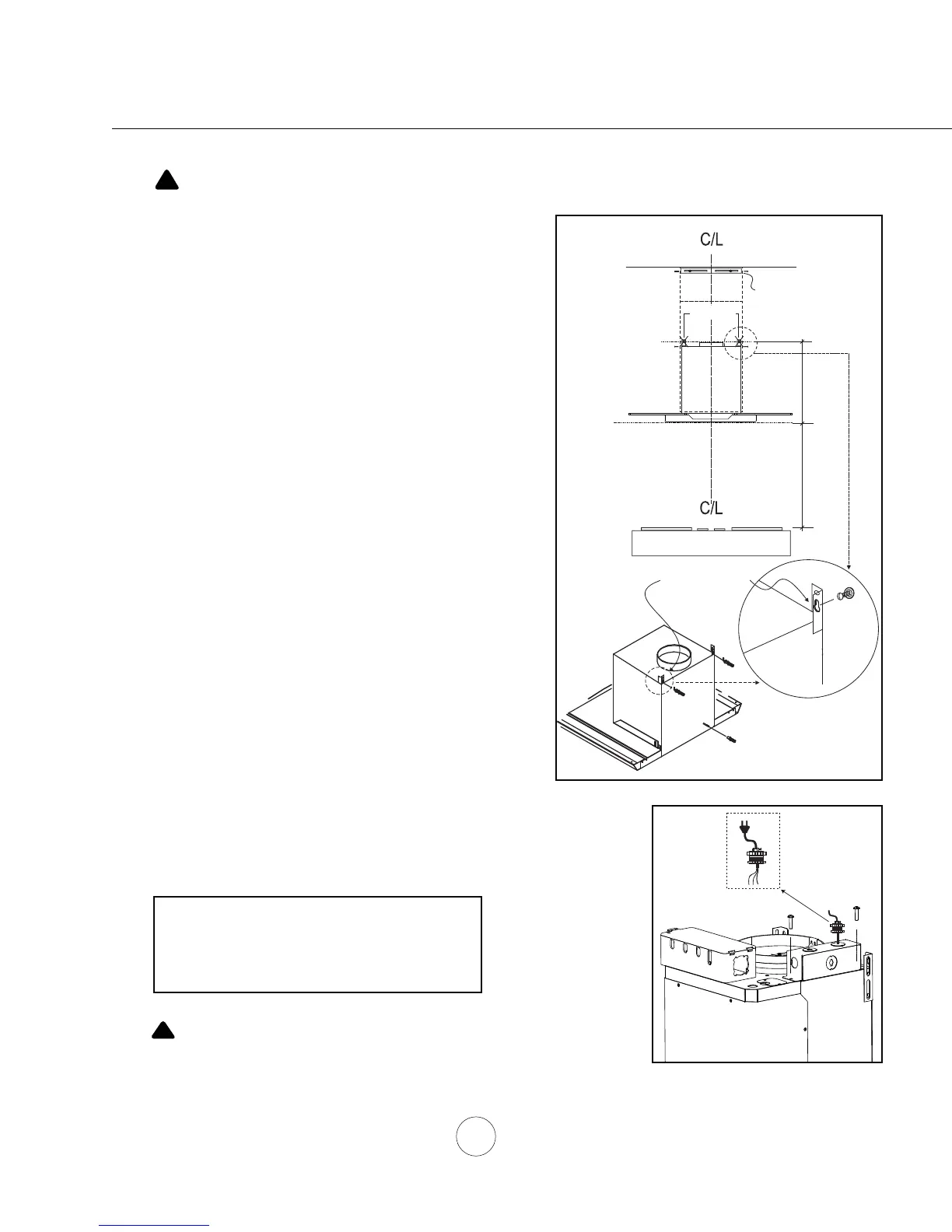
Installation – Mounting the Hood, RH002
1. Measure from range top to hood bottom and mark line A.

2. Plum and mark center line.
 
 
 
do not tighten all the way. Note: Wood blocking may
need to be added behind the drywall if no studs are
present. Wall anchors may also be used but check
local codes before using wall anchors.
 

 

third 6 x 1-1/2” screw with washer through inside of hood

8. Center and attach duct cover mounting bracket to wall


9. Install duct work and seal with aluminum duct tape*.
Re-install junction box with cable lock and install the

10. Power up hood to verify all functions and check for leaks
around duct tape.
11. Place telescopic duct covers onto hood and extend



* If using hood in recirculating mode you must secure the
air diverter plate onto wall before installing duct work and
duct covers. Turn to page 14 for more details.
15
1/8
Brackets are
pre-installed
8
15/16
26” Min.
A
B
3
1
2
Duct Cover Bracket
CAUTION: At least two installers are
required due to the weight and size of the
hood.
!
WARNING: Electrical wiring must be done by a qualified person(s) in
accordance with all applicable codes and standards. This range hood must be
properly grounded. Turn off electrical power at service entrance before wiring.
!
Cable Lock

be required by local codes. Check with local
requirements and codes, purchase and install
appropriate connector if necessary.
Cable Lock
2
1
FIG. B
FIG. A

Related product manuals