EasyManua.ls Logo

Yamaha 30DE - Remote Switch Applications

Yamaha 30DE
226 pages
Print Icon
To Next Page IconTo Next Page
To Next Page IconTo Next Page
To Previous Page IconTo Previous Page
To Previous Page IconTo Previous Page
Loading...
3-15
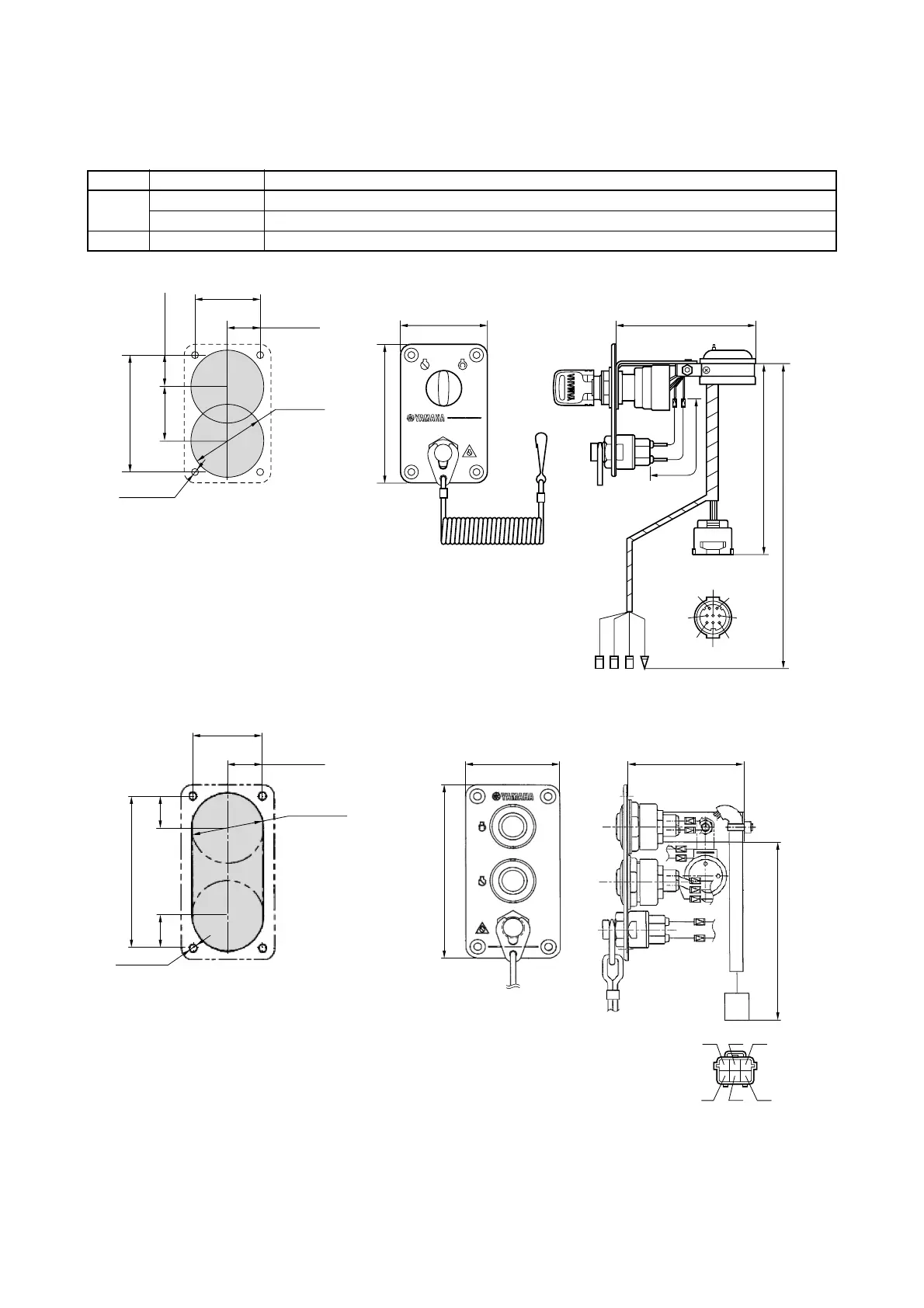
REMOTE SWITCH APPLICATIONS
COMBINATION SWITCH PANEL (IG SWITCH AND EMERGENCY STOP SWITCH)
SINGLE IG SWITCH W/ PANEL
Ref. No. Part No. Description
1
704-82570-08 With choke switch
6R5-82570-05 W/o choke switch (Prime start or Digital network gauge)
2 6X6-82570-00 For F350/F300/F250 [Digital Electronic Control], 2nd helm (dual-station)
68 (2.68) 110 (4.33)
P
R
B
G
Y
L
B
G
Y
R
Br
W
110 (4.33)
93 (3.66)
355 (13.98)
51 (2.0)
Cut out shaded area
25.5 (1.0)
54 (2.12)
5.6 (0.22)
93 (3.66)
44.5 (1.75)
24.3 (0.95)
60
(2.36)
130 (5.12)
Cut out shaded area
51 (2.0)
25.5 (1.0)
68 (2.68)
113 (4.49)
24 (0.94)24 (0.94)
52.4 (2.06)
5.5 (0.22)
140 (5.51)
86 (3.39)
Or
YBr
P
W
B
1
2
mm (in.)
mm (in.)

Table of Contents

Related product manuals