EasyManua.ls Logo

Yardline RIDGEPOINTE - EAVE WALL PANEL INSTALLATION

Yardline RIDGEPOINTE
78 pages
Print Icon
To Next Page IconTo Next Page
To Next Page IconTo Next Page
To Previous Page IconTo Previous Page
To Previous Page IconTo Previous Page
Loading...
18

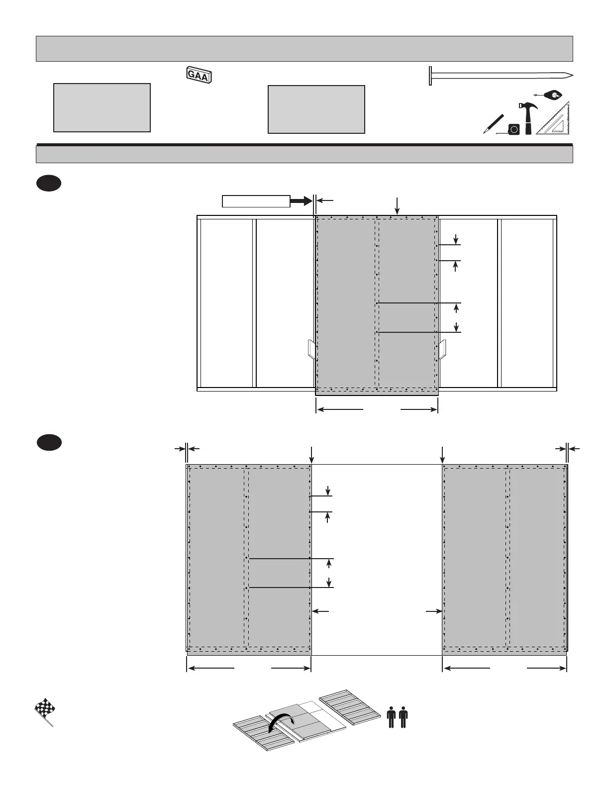
BLOCK
FINISH
Repeat steps to build
your second eave wall.
Your gable walls are now assembled.
Carefully ip the gable walls over.
Flush

Block
3/4"
(1,9 cm)
EAVE WALL PANELS
PARTS REQUIRED:
46-1/8 x 72"
(117,2 x 213,4 cm)
x2
48 x 72"
(121,9 x 213,4 cm)
x1
x135
2" (5,1 cm)

Block
BEGIN HERE
2
Install (1)  panel ush
to the top plate.
Use the gauge block
for consistent measurement
on the wall stud.
Secure the panel with 2" nails
spaced 6" apart on edges
and 12" apart inside panel.
3
Install (2) panels
ush to the installed panel.
Secure with 2" nails spaced 6"
apart on edges and 12" apart
inside panel.
Flush Flush
46-1/8"
(117,2 cm)
46-1/8"
(117,2 cm)
48"
(121,9 cm)
FlushFlush
6" (15,2 cm)
6" (15,2 cm)
12" (30,5 cm)
12" (30,5 cm)
Install panels with the primed side facing up.
3/8"
(9,5 mm)
reveal at each end.
3/8"
(9,5 mm)