EasyManua.ls Logo

Yardline RIDGEPOINTE - BACK GABLE WALL PANEL INSTALLATION

Yardline RIDGEPOINTE
78 pages
Print Icon
To Next Page IconTo Next Page
To Next Page IconTo Next Page
To Previous Page IconTo Previous Page
To Previous Page IconTo Previous Page
Loading...
20
BACK GABLE WALL PANELS
PARTS REQUIRED:

BLOCK
Install panels with the primed side facing up.
x122
2" (5,1 cm)
3/8 x 23-7/8 x 72"
(1 x 60,6 x 182,9 cm)
x1
3/8 x 48 x 72"
(1 x 121,9 x 182,9 cm)
x2
FINISH
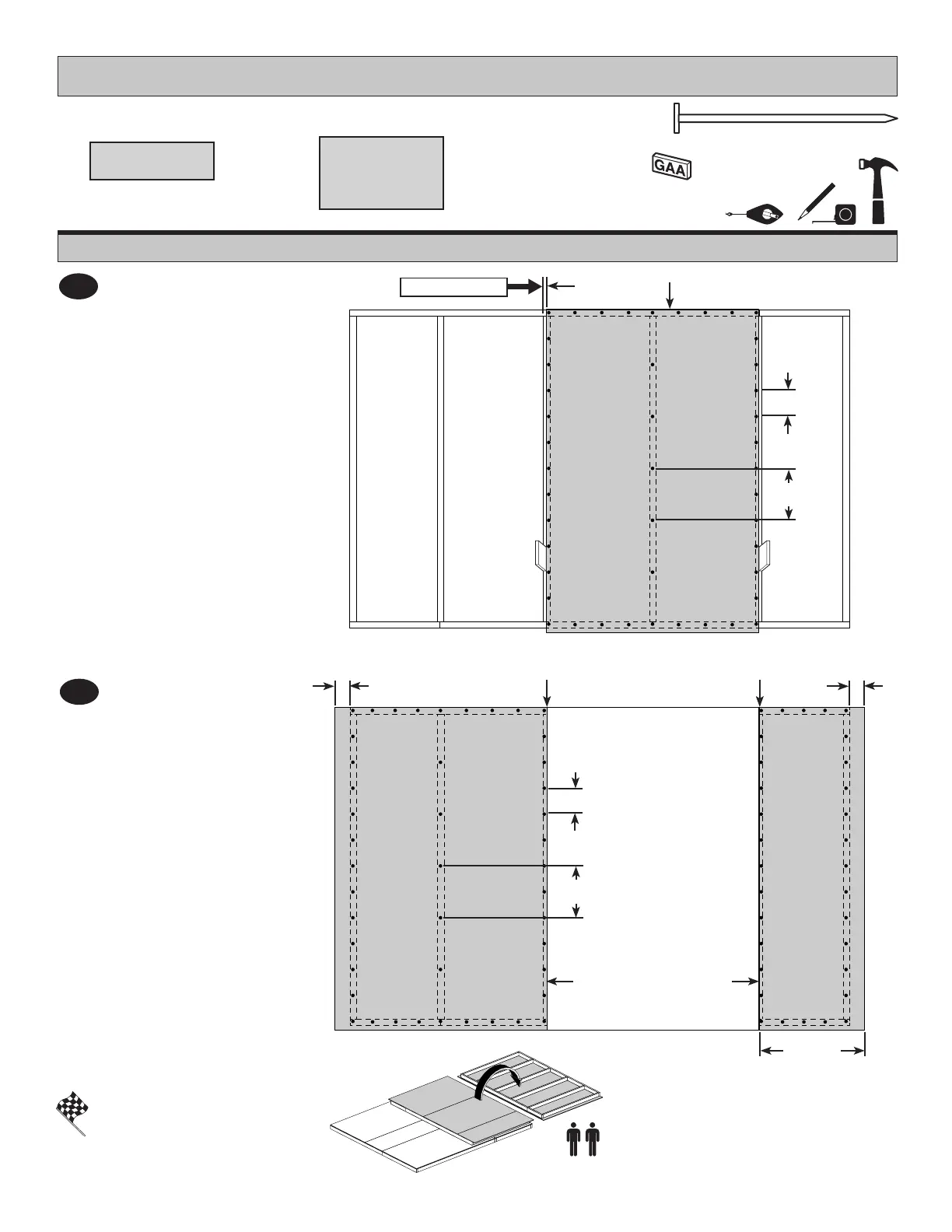
Your back gable wall is now assembled.
Carefully ip the gable wall over.
Flush

Block

Block
BEGIN HERE
3/4"
(1,9 cm)
6" (15,2 cm)
6" (15,2 cm)
12"
(30,5 cm)
12"
(30,5 cm)
3-1/2"
(8,9 cm)
3-1/2"
(8,9 cm)
2
Install (1)  panel ush
to the top plate.
Use the gauge block
for consistent measurement
on the wall stud.
Secure the panel with 2" nails
spaced 6" apart on edges
and 12" apart inside panel.
3
Install (1)  and (1)
panel ush
to installed panel.
Secure with 2" nails spaced 6"
apart on edges and 12" apart
inside panel.
FlushFlush
23-7/8"
(60,6 cm)
FlushFlush