EasyManua.ls Logo

YILMAZ CA 601 - Page 31

YILMAZ CA 601
35 pages
Print Icon
To Next Page IconTo Next Page
To Next Page IconTo Next Page
To Previous Page IconTo Previous Page
To Previous Page IconTo Previous Page
Loading...
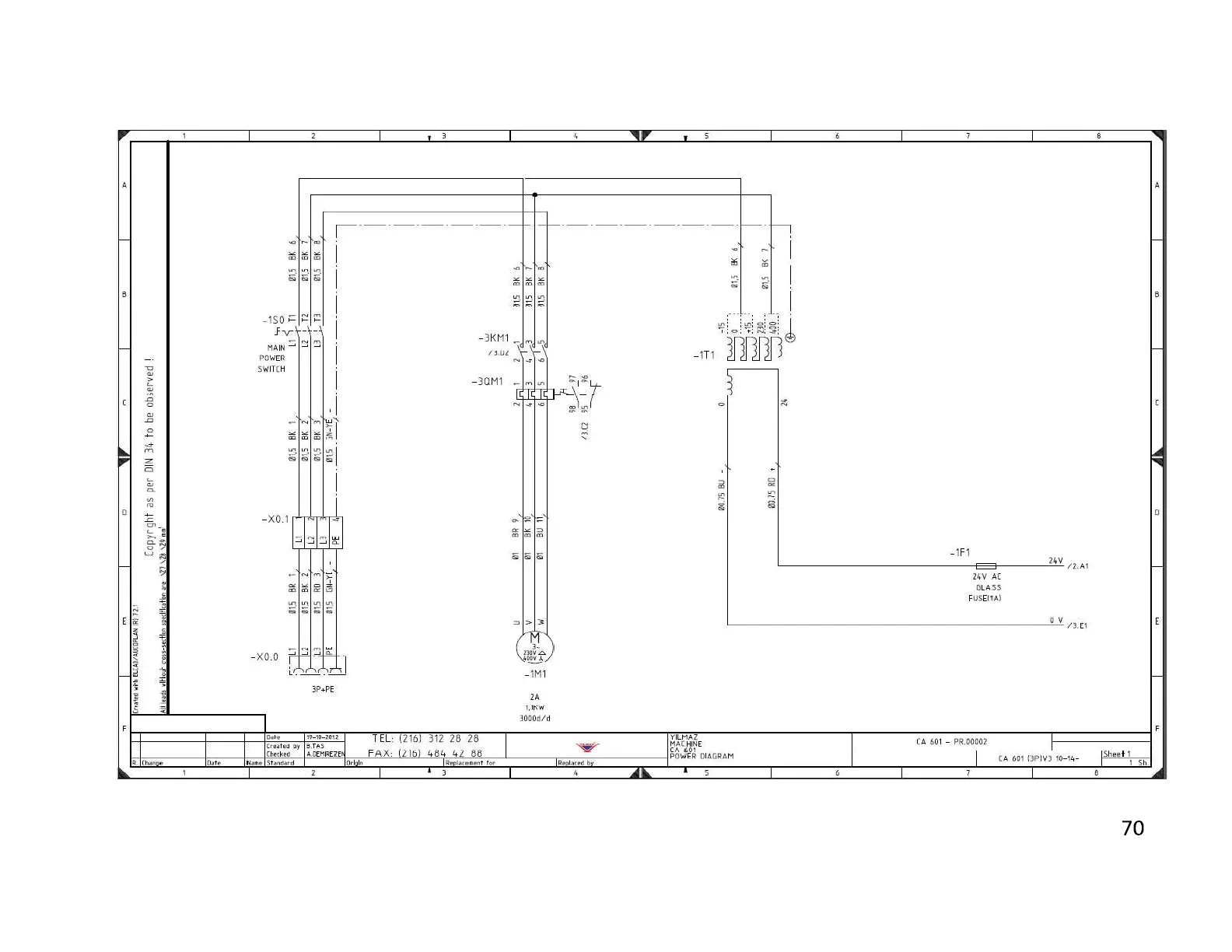
3 PHASE ELECTRICAL DIAGRAM SHEET 1