EasyManua.ls Logo

Zanussi easyChill 110721 - Page 4

Zanussi easyChill 110721
5 pages
Print Icon
To Next Page IconTo Next Page
To Next Page IconTo Next Page
To Previous Page IconTo Previous Page
To Previous Page IconTo Previous Page
Loading...
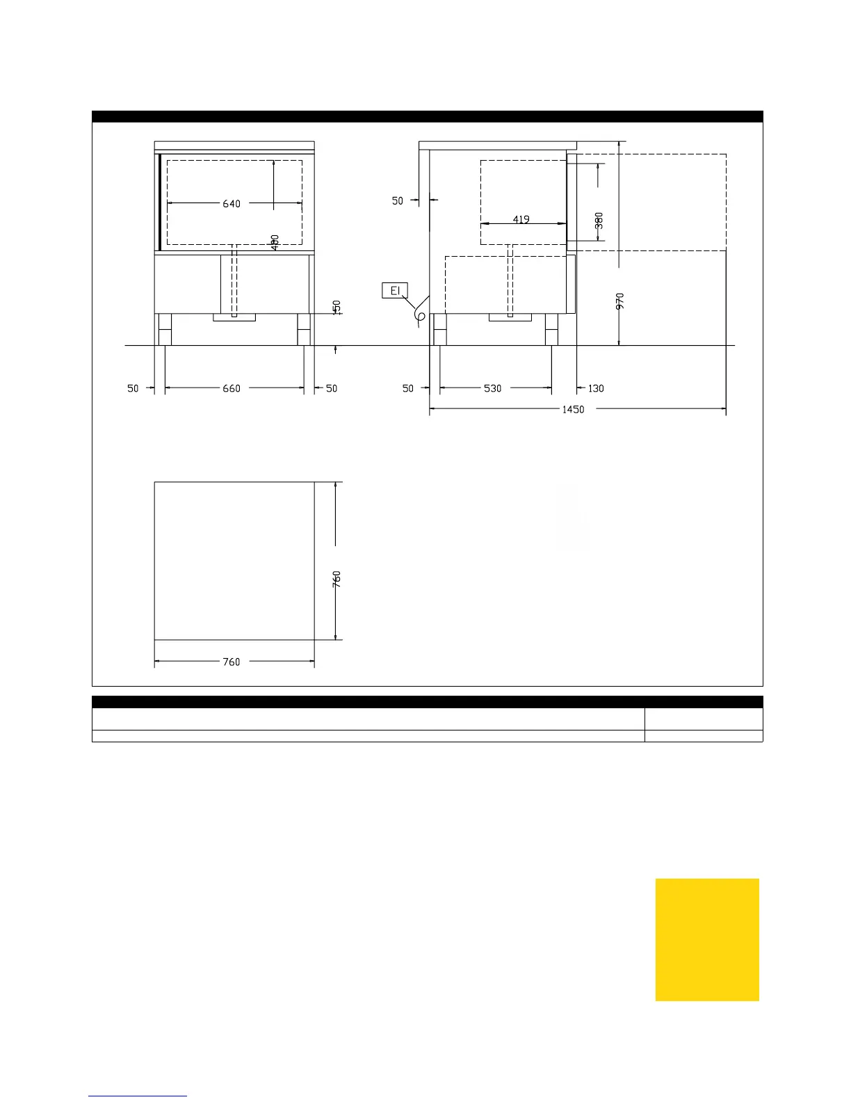
ACTIVE BLAST CHILLER / FREEZERS
7/15/28 KG.
DCB01 2010-05-28 The Company reserves the right to alter technical specifications without prior notice.
www.zanussiprofessional.com
ZANUSSI
P R O F E S S I O N A L
EI - Electrical connection 230 V, 1N, 50
BCF15A
110721
LEGEND
110721

Related product manuals