EasyManua.ls Logo

ZEKS Eclipse 500ZPB - Page 34

ZEKS Eclipse 500ZPB
73 pages
Print Icon
To Next Page IconTo Next Page
To Next Page IconTo Next Page
To Previous Page IconTo Previous Page
To Previous Page IconTo Previous Page
Loading...
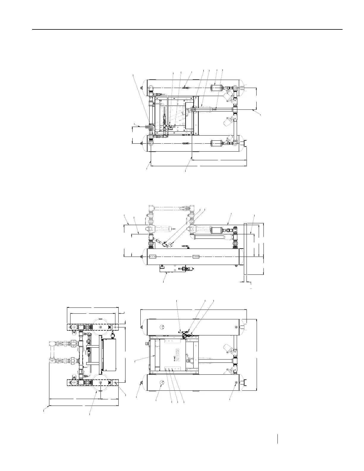
12.0 GENERAL ARRANGEMENT
ZEKS Eclipse
TM
90-5,000ZPB Desiccant Dryers
www.zeks.com
32
&

47.,.3&17*1*&8* 7(< 35&

94<*757*88:7*,&:,*
)*8.((&39)7&.35479
)*8.((&39+.115479

 ?5'
?5'
+&(*4+&.74:91*9
459.43&1+.19*75&(0&,*&
+&(*4+&.7.31*9
459.43&1+.19*75&(0&,*&
I
4+&.7.31*9
7*1.*+;&1;*

I
4+&.74:91*9
I
4+&.74:91*9

9>5


+&(*4+&.7.31*94:91*9
459.43&1;&1;*'>5&88
I
4+&.7.31*9

5:7,*2:++1*7

9>5
1.+9.3,8:55479
8**349*
459.43&194<*7.38:1&9.43
8-4<39-.8;.*<431>




5:7,*&)/:892*39;&1;*
5:7,*+14<,&:,*



):895&79.(:1&9*&+9*7+.19*7
459.43&1
259&:942&9.()7&.3
(433*(9.43
459.43&1+.19*75&(0&,*&
-.,-*++.(.*3(>57*+.19*7
459.43&1
259&:942&9.()7&.3
(433*(9.43
459.43&1+.19*75&(0&,*&



 24:39.3,-41*8
*1*(97.(&1
*3(148:7*
5.149&.7+.19*7
'1:*24.89:7*
.3).(&947
54<*7431.,-9
1*+994<*7)7>.3,1.,-9
7.,-994<*7)7>.3,1.,-9
5.149&.78-:94++
;&1;*
 ?5'
?5'
+&(*4+&.74:91*9

+&(*4+&.7.31*9
+59&.74:91*9(433*(9.43
+59&.7.31*9(433*(9.43

General Arrangement
Dryer Models: 160ZPB-200ZPB
NEMA 1
Drawing No.: 47597132
349*8
2&=.2:2<470.3,57*88:7*58.
8&+*9>7*1.*+;&1;*8*99.3,58.
5.149&.71.3*83498-4<3+47(1&7.9>
&11<.7.3,.8.3&((47)&3(*<.9-9-*3&9.43&1*1*(97.(&1(4)*81&9*89*).9.43
)7>*794'*1.+9*)'>1.+9.3,8:55479431>
)*8.,3.8)*5.(9*)+4789&3)&7)24)*19-.8)7&<.3,)4*8349)*5.(9459.438
9-*:3.9).2*38.438<.11;&7>+47574):(98(43+.,:7*)<.9-459.438
9-.8)7&<.3,.8574;.)*)+477*+*7*3(*5:7548*8431>
)*8.,3&3)).2*38.438&7*8:'/*(994(-&3,*<.9-4:9349.(*
14(&9.434+(4257*88*)&.7.31*94:91*9(433*(9.4382&>;&7>'&8*)43459.4388*1*(9*)
DIMENSIONAL TOLERANCES: +/- 1.00”

Related product manuals