EasyManua.ls Logo

ZEKS Eclipse 500ZPB - Page 52

ZEKS Eclipse 500ZPB
73 pages
Print Icon
To Next Page IconTo Next Page
To Next Page IconTo Next Page
To Previous Page IconTo Previous Page
To Previous Page IconTo Previous Page
Loading...
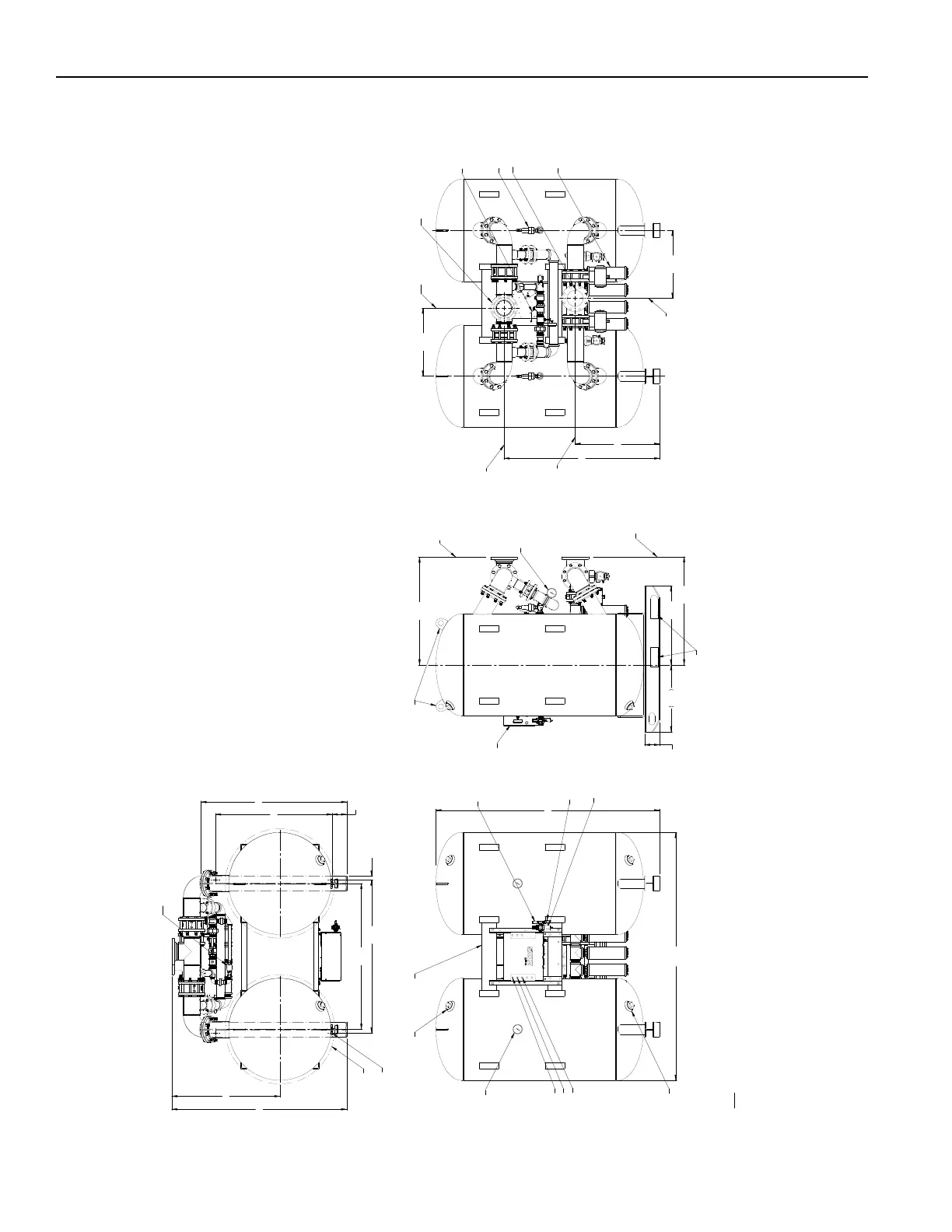
12.0 GENERAL ARRANGEMENT
ZEKS Eclipse
TM
90-5,000ZPB Desiccant Dryers
www.zeks.com
General Arrangement
Dryer Model: 5000ZPB
NEMA 1
Drawing No.: 47597141 A
50
+&(*4+&.74:91*9
I
4+&.74:91*9
1.+9.3,8:55479
8**349*
7++1&3,*
&.74:91*9(433*(9.43
*1*(97.(&1
*3(148:7*
3*2&
5:7,*2:++1*7
94<*757*88:7*,&,*
)*8.((&39+.115479
'1:*24.89:7*.3).(&947
54<*7431.,-9
I
4+&.7.31*9
)*8.((&39)7&.35479
+&(*4+&.7.31*9

24:39.3,-41*8
+++1&3,*
&.7.31*9(433*(9.43
I
4+&.74:91*9
7*1.*+;&1;*
 9>5








I
4+&.7.31*9



459.43&194<*7.38:1&9.43
8-4<39-.8;.*<431>




5:7,*+14<,&,*
5:7,*&)/:892*39;&1;*

1.+9.3,1:,8
8**349*
)43491.+9-*7*
 9>5
7*57*88:7.?&9.43;&1;*

1*+994<*7)7>.3,1.,-9
7.,-994<*7)7>.3,1.,-9
5.149&.78-:94++
5.149&.7+.19*7
;&1;*
7*,:1&947
349*8
2&=.2:2<470.3,57*88:7*58.
8&+*9>7*1.*+;&1;*8*99.3,58.
5.149&.71.3*83498-4<3+47(1&7.9>
&11<.7.3,.8.3&((47)&3(*<.9-9-*3&9.43&1*1*(97.(&1(4)*81&9*89*).9.43
)7>*794'*1.+9*)'>1.+9.3,8:55479431>
)*8.,3.8)*5.(9*)+4789&3)&7)24)*19-.8)7&<.3,)4*8349)*5.(9459.438
9-*:3.9).2*38.438<.11;&7>+47574):(98(43+.,:7*)<.9-459.438
9-.8)7&<.3,.8574;.)*)+477*+*7*3(*5:7548*8431>
)*8.,3&3)).2*38.438&7*8:'/*(994(-&3,*<.9-4:9349.(*
14(&9.434+(4257*88*)&.7.31*94:91*9(433*(9.4382&>;&7>'&8*)43459.4388*1*(9*)

Related product manuals