EasyManua.ls Logo

Zenith MBR3447Z - Power Supply

Zenith MBR3447Z
112 pages
Print Icon
To Next Page IconTo Next Page
To Next Page IconTo Next Page
To Previous Page IconTo Previous Page
To Previous Page IconTo Previous Page
Loading...
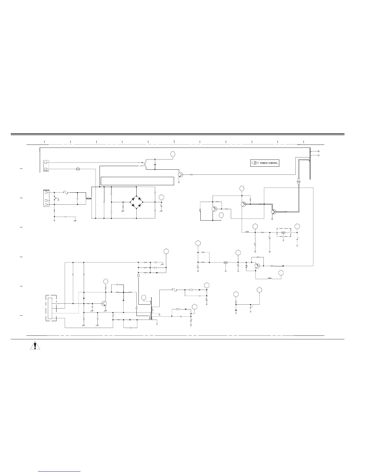
CRITICAL SAFETY COMPONENTS ARE IDENTIFIED BY THE LETTER “X“ IN THEIR
COMPONENT DESIGNATORS. REPLACE ONLY WITH PART NUMBERS SPECIFIED.
ALL SYMBOLS WITH “M” ON END OF DESIGNATOR
INDICATE SURFACE MOUNTED COMPONENT
Power Supply
DEG-CLT
PWRCONT
VSB
+18
+9V
SW
1
2
3
4
1000PF
1000V
+18
AUD
0.033
50V
2.2K
4.7K
1/4W
470UF
25V
95-4285
136-114-23A
4A-250V
10K
470PF
500V
P/.L
PROV
1000PF
1000V
25V
1000UF
+18
VSW
15
5W
1000PF
1000V
4.7K
1/4W
1000PF
1000V
1/2W
5.6M
16V
100UF
50V
22UF
121-1102A
0.0047UF
63-10710A
470PF
500V
TUNE
+5V
103-344-06
121-1340A
PROV
PROV
5W
0.68
VDC
B+
+5V
SB
B+
VSB
+18
56UH
+18
VSW
220UF
16V
25V
470UF
1/2W
15OHM
220MFD
200V
220PF
500V
PWRCONT
103-347-3A
103-344-06
470PF
500V
38-102
47
P/L
330UF
200V
121-1348
P/L
500V
1000PF
103-344-06
1/2W
100UF
25V
1000PF
500V
B+
VDC
B+
VDC
1000PF
2000V
5W
0.15
DEG-CTL
*
IN OUT
IN OUT
CX3405
D3411
D
X
3
4
0
2
LX3403
R3424
0.01
1250V
CX3415
CX3411
R3414
D
X
3
4
0
1
D3414
LX3404
R3419
CX3430
LX3401
FX3401
R3412M
D
X
3
4
0
3
C3419
R3425M
Q3405
L3407
R3426M
CX3403
R3422M
CX3424
RX3417
CX3404
TX3401
R3418
CX3406
RX3400
C3429
CX3413
ICX3402
Q3404
D3410
CX3400
THX3415
C3421
KX3401
DX3406
Q3402
FX3402
W3402
Q3403
ICX3401
RX3410
CX3428
RX3401
Q3406
L3405
CX3401
0.1UF
250V AC
C3426
C3425
RX3409
CX3420
CX3418
DX3405
RX3408
3T8
DX3407
CX3408
EX3401
RX3406
CX3402
RX3407
CX3407
QX3401
ICX3400
LX3410
149-549
CX3412
DX3408
3R8
RX3404
CX3416
CX3410
W3401
CX3409
D
X
3
4
0
4
RX3403
PROV
PROV
149-540-01
221-213
103-589
195-161
P/L
121-1340A
20-4462-18A
58-546-02
58-546-03
3
1
6
4
C
B
E
1
4
11
18
13
16
8
7
5
15
1
2
3
C
B
E
C
B
E
C
B
E
1
2
3
C
B
E
2
1
C
B
E
5
1
2
3
4
2
1
3
TO
A.C.
LINE
DEGAUSSER
0
0
18.70
18.40
0.029
14.86
10.82
DX3400 212-172-04 (PACKAGE FOR 32/36”)
DX3401, DX3402, DX3403, DX3404 103-588A (DISCRETE FOR 25/27”)
DX3400
SWITCH MODE REGULATOR
0
12345678
A
B
C
E
F
G
910 11 12
D
SHEET 3
PROV
PROV
PROV
PROV
180K
P/L
RX3427
P/L
2W
RX3423
VDC
PROV
4.96
8.95
17.93
0.64
0.65
0.2
0
0.45
0.135
140.8
0.458
-41.79
VSW
+15
VSW
+18
25V
220UF
C3460
P/L
RX3428
ZDX3401
15V
103-279-24A
221-213-09
126-3326-02
P/L
0.133
DX3409
PROV
C3414
PROV
RX3411
+18
VSB
RX3405
1.2
3W
0.0047UF
1/4W
P/L
500V
500V
149-540-01
CA SHEET 26-2

Table of Contents

Related product manuals