EasyManua.ls Logo

2VV ALFA 85 - Page 16

2VV ALFA 85
54 pages
Print Icon
To Next Page IconTo Next Page
To Next Page IconTo Next Page
To Previous Page IconTo Previous Page
To Previous Page IconTo Previous Page
Loading...
16
2VV. Creating innovative solutions for you and your business since 1995.


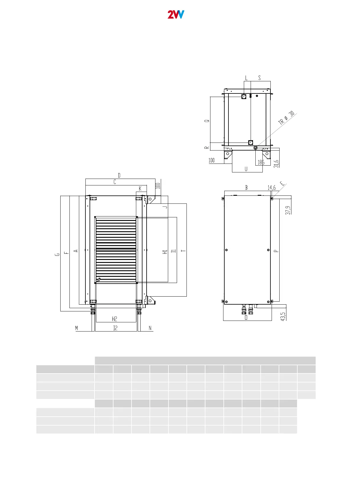
ALFA 85 A B C D E F G H1 H2 I1 I2 J
  578 696  Ø8       
  578   Ø8       
  578 768  Ø8       
K L M N O P Q R S T U
  65         
  65      96   
  85     576 96   

4. DIMENSIONS

Related product manuals