EasyManua.ls Logo

2VV ALFA 85 - Page 9

2VV ALFA 85
54 pages
Print Icon
To Next Page IconTo Next Page
To Next Page IconTo Next Page
To Previous Page IconTo Previous Page
To Previous Page IconTo Previous Page
Loading...
9
2VV. Creating innovative solutions for you and your business since 1995.
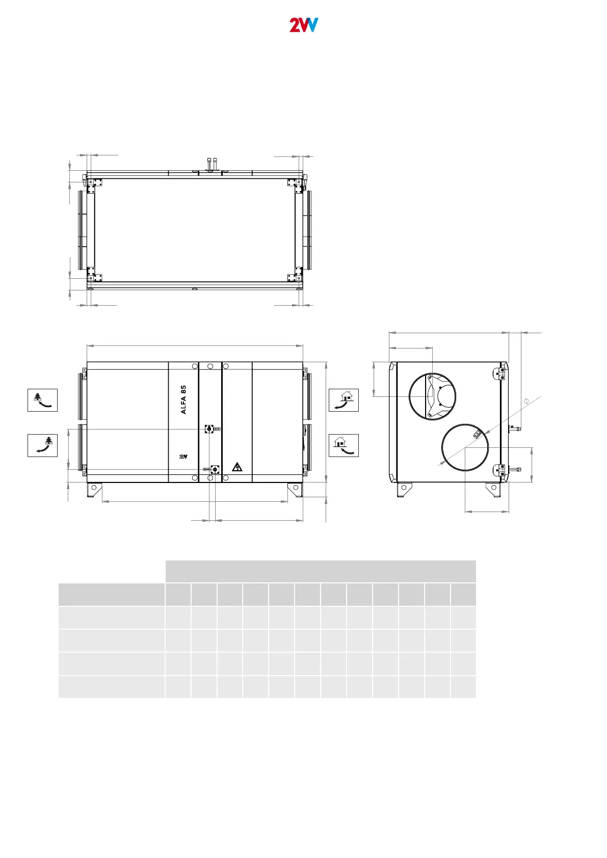
4. DIMENSIONS

A
C
100
G1
O
P
R
Q
B
85
F
E
D
F
H1
80
27,5
27,5
80
27,5 27,5


A B C D E F G1 H1 O P Q R
ALFA 85            87 
ALFA 85   958         87 
ALFA 85   958         87 
ALFA 85   988         87 

Related product manuals