EasyManua.ls Logo

A&D BM series - External Dimensions

A&D BM series
116 pages
Print Icon
To Next Page IconTo Next Page
To Next Page IconTo Next Page
To Previous Page IconTo Previous Page
To Previous Page IconTo Previous Page
Loading...
BM series 101
Opening 66
45 Opening
Opening 3
0
Above pan 21
141 Opening
140 Opening
Opening
11
5
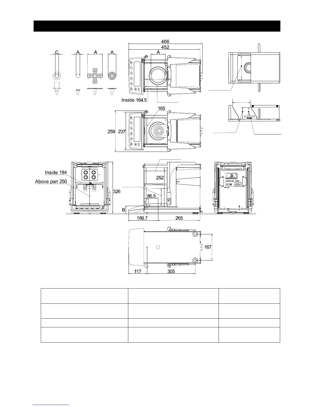
20.1. External Dimensions
Unit: mm
BM-20, BM-22
BM-252, BM-500
BM-300, BM-200
A: Diameter of the weighing pan
Weighing pan: 25
Weighing pan for filter: 50, 95
Weighing pan: 90
B: Height of the weighing pan 54 50
C: The inside diameter of the
test tube holder
12 12 (Option)
Slide breeze break

Table of Contents

Other manuals for A&D BM series

Related product manuals