EasyManua.ls Logo

ABB HT581678 - Table of Tightening Torques

ABB HT581678
132 pages
Print Icon
To Next Page IconTo Next Page
To Next Page IconTo Next Page
To Previous Page IconTo Previous Page
To Previous Page IconTo Previous Page
Loading...
Operation Manual / TPS44-F.. - TPS61-F..
Disassembly and assembly 8
Table of tightening torques 8.6 Page 113
© Copyright 2016 ABB. All rights reserved.
August 2017HZTL2412_ENRevision F
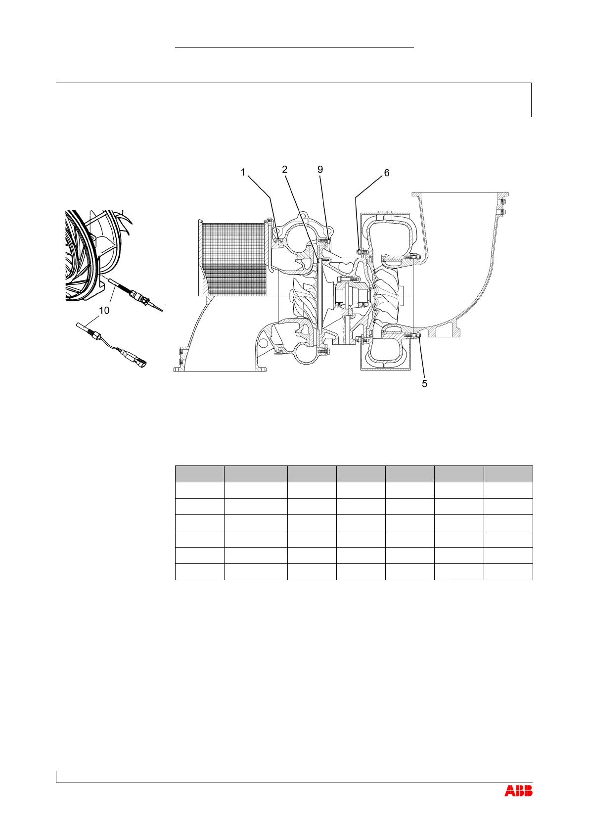
Table of tightening torques
8.6
The following tightening torques must be observed for the specified screw
connections:
Position Part number TPS44 TPS48 TPS52 TPS57 TPS61
1 72020 60 60 60 60 60
2 42008 6 10 10 20 20
5 52433 20 20 40 65 65
6 51007 25 25 45 75 75
9 72011 35 35 70 105 170
10 86505 15 15 15 15 15
8.6
Tightening torques [Nm]

Table of Contents

Related product manuals