EasyManua.ls Logo

ABB NBRA-658 - Braking Chopper NBRA-658;659;669

ABB NBRA-658
54 pages
Print Icon
To Next Page IconTo Next Page
To Next Page IconTo Next Page
To Previous Page IconTo Previous Page
To Previous Page IconTo Previous Page
Loading...
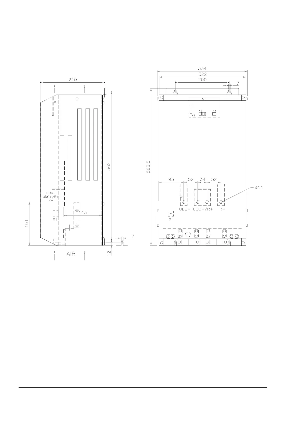
Appendix A – Dimensions
A-2 Installation and Start-up Guide for NBRA-6xx
Braking Chopper
NBRA-658/659/669
Weight: 26 kg

Related product manuals