EasyManua.ls Logo

ABB NBRA-659 - Mechanical Installation NBRA-655;656;666

ABB NBRA-659
54 pages
Print Icon
To Next Page IconTo Next Page
To Next Page IconTo Next Page
To Previous Page IconTo Previous Page
To Previous Page IconTo Previous Page
Loading...
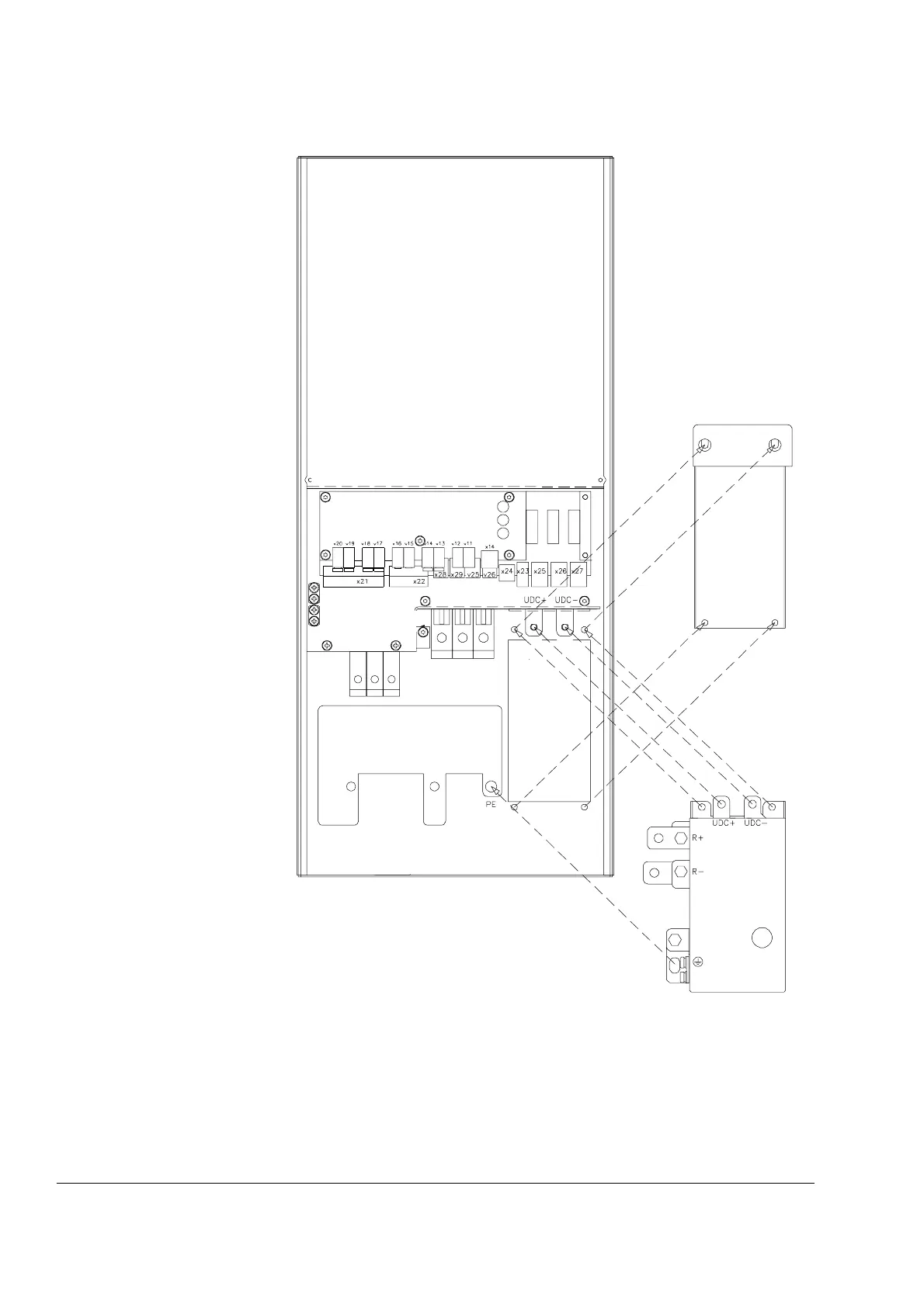
Chapter 3 – Voltage Selection and Mechanical Installation
3-6 Installation and Start-up Guide for NBRA-6xx
Mechanical Installation
NBRA-655/656/666
Figure 3-4 Mounting the braking choppers NBRA-655/656/666.

Related product manuals