EasyManua.ls Logo

ABB REF 541 - Connectivity Package Manager

ABB REF 541
118 pages
Print Icon
To Next Page IconTo Next Page
To Next Page IconTo Next Page
To Previous Page IconTo Previous Page
To Previous Page IconTo Previous Page
Loading...
1MRS750527-MUM
)HHGHU7HUPLQDO
Technical Reference Manual, General
5()B
15
be opened and closed over the remote control system. Status information and control
signals are transmitted over the serial bus. Local control is also possible via the push-
buttons on the front panel of the feeder terminal.
The feeder terminal is designed to be used for the selective short-circuit and earth-
fault protection. The feeder protection type REF 54_ includes overcurrent and earth-
fault functions and is used for feeder short-circuit, time overcurrent and earth-fault
protection in solidly, resistant or resonant-earthed networks and in isolated neutral
networks. When desired, auto-reclosing is achieved by using the auto-reclose
function. Up to five successive auto-reclose cycles can be carried out. For an
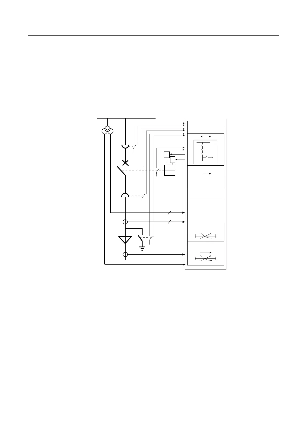
example application with basic functions, see Figure 3.1.-2 below.
)LJ %DVLFIXQFWLRQVRIWKHLQWHJUDWHGIHHGHUWHUPLQDO5()B
In addition, REF 54_ offers protection functions for a large variety of applications,
e.g. frequency and voltage based protection, motor protection, thermal overload
protection, capacitor bank protection and synchro-check/voltage check function.
The REF 54_ terminal measures phase currents, phase-to-phase or phase-to-earth
voltages, neutral current, residual voltage, frequency and power factor. Active and
reactive power is calculated from measured currents and voltages. Energy can be
calculated on the basis of the measured power. The measured values can be
indicated locally and remotely as scaled primary values.
With the condition monitoring functions the REF 54_ feeder terminal monitors e.g.
gas pressure and breaker wear, registers the operate time and provides scheduled
time intervals for maintenance.
1
0
+
+
+
+
COIND
3
3
Io
Uo
COCB
0 1
AR5Func
0 1
MECU3A
I
MEVO3A
U
MEPE7
P
Q
E
Cos ϕ
NOC3Low
3I>
DEF2Low
Io>
refex

Table of Contents

Other manuals for ABB REF 541

Related product manuals