EasyManua.ls Logo

Abus 2WAY - Page 116

Abus 2WAY
Print Icon
To Next Page IconTo Next Page
To Next Page IconTo Next Page
To Previous Page IconTo Previous Page
To Previous Page IconTo Previous Page
Loading...
116
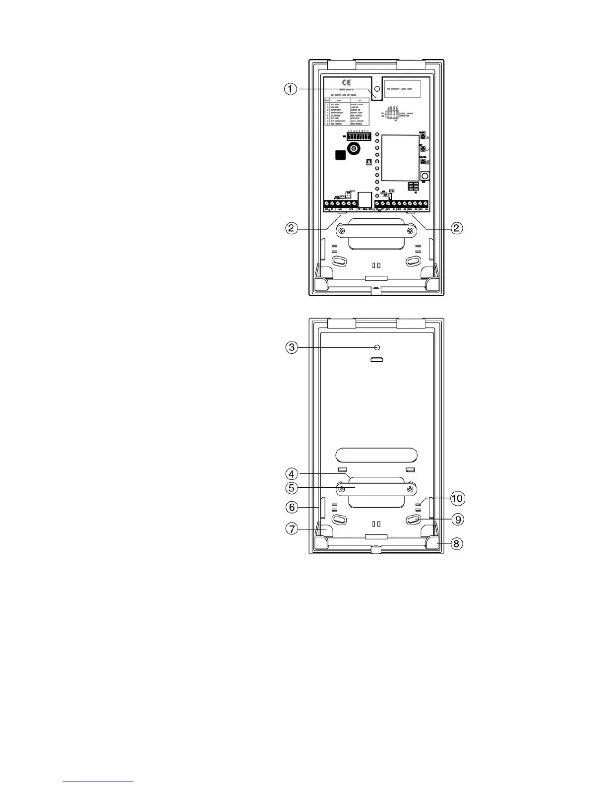
4.2 Binnenkant van het huis
1. Bovenste printplaathouder
2. Onderste printplaathouder
3. Bovenste bevestigingsgat
4. Opening voor kabelinvoer
5. Kunststof rail voor
trekontlasting
6. Kabelinvoeren aan de zijkant
7. Kabelinvoer op de hoek
8. Accuhouder
9. Onderste bevestigingsgaten
10. Trekontlastings-
inrichtingen

Table of Contents

Related product manuals