EasyManua.ls Logo

Abus 2WAY - Platine

Abus 2WAY
Print Icon
To Next Page IconTo Next Page
To Next Page IconTo Next Page
To Previous Page IconTo Previous Page
To Previous Page IconTo Previous Page
Loading...
60
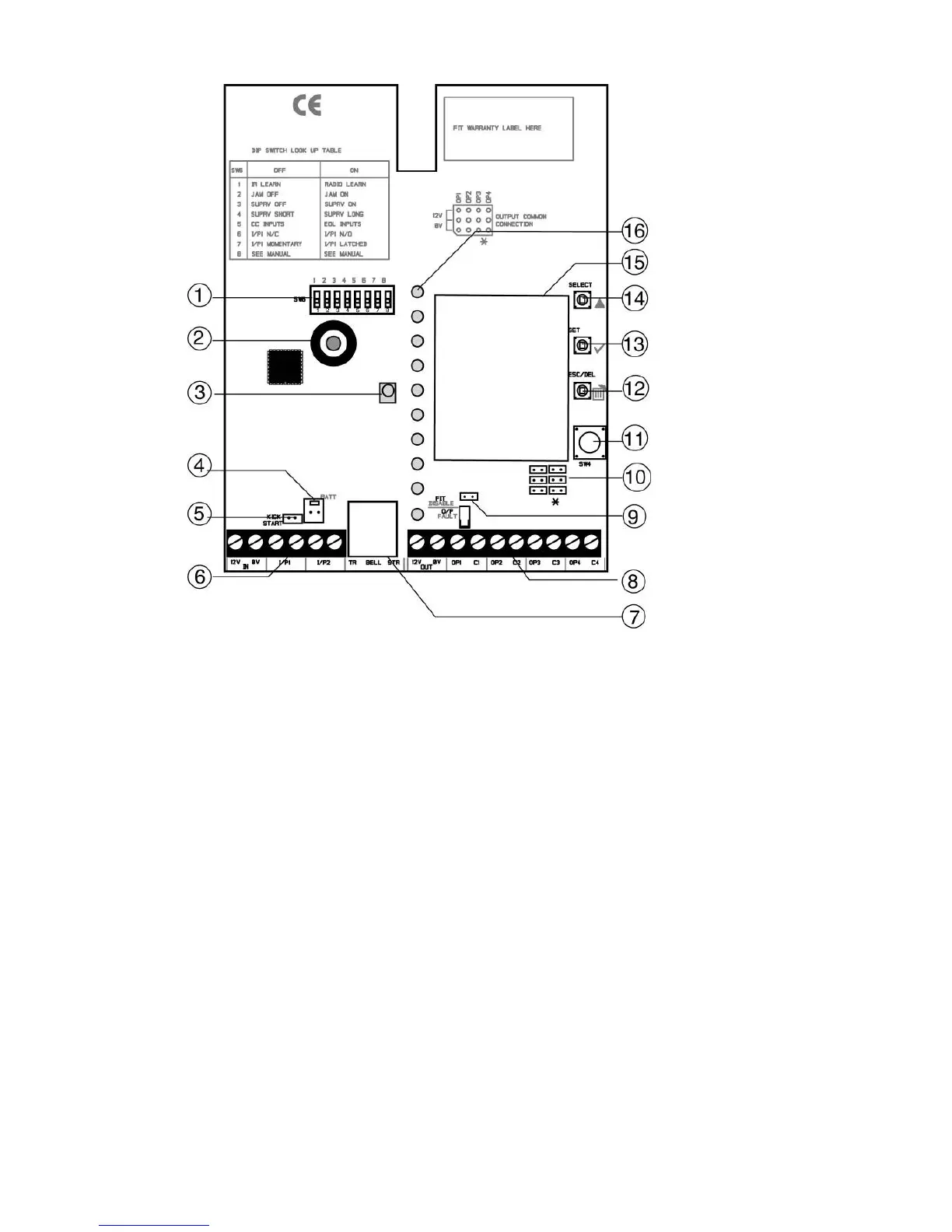
4.3 Platine
1. Interrupteur DIP
2. Emetteur de signaux Piezo
3. Récepteur infrarouge à LED
4. Connecteur de batterie
5. Connecteur du jack enfichable « Kick Start »
6. Prise d’alimentation et entrée de zones
7. Connecteur RJ12 de la sirène externe
8. Sortie d’alimentation et sorties de relais
9. Connecteur du jack enfichable « Fit Disable »
10. Connecteurs du jack enfichable destinés à la configuration
d’origine
11. Contact
antisabotage
12. Touche ESC/DEL
13. Touche SET
14. Touche SELECT
15. Unité emetteur/
récepteur
16. Affichages à LED (canaux détecteurs)

Table of Contents

Related product manuals