EasyManua.ls Logo

Abus 2WAY - Page 88

Abus 2WAY
Print Icon
To Next Page IconTo Next Page
To Next Page IconTo Next Page
To Previous Page IconTo Previous Page
To Previous Page IconTo Previous Page
Loading...
88
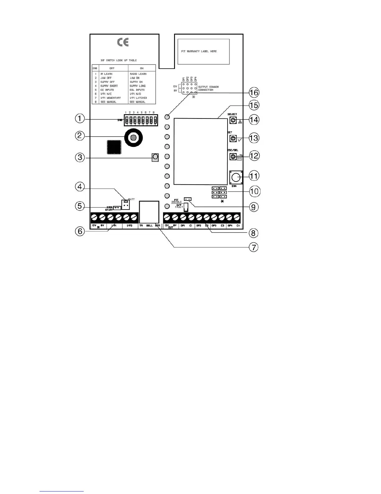
4.3 Scheda
1. DIP switch
2. Trasmettitore di segnale piezoelettrico
3. IR LED ricevitore
4. Attacco accumulatore
5. Avviamento Kick attacco a ponticello
6. Allacciamento tensione e ingressi zone
7. Connettore RJ12 per sirena esterna
8. Uscita tensione e uscite relè
9. Fit Disable attacco a ponticello
10. Attacchi a ponticello per configurazione uscite
11. Contatto antisabotaggio
12. Tasto ESC/DEL
13. Tasto SET
14. Tasto SELECT
15. Unità trasmettitore/ricevitore
16. Indicatori LED (canali del rilevatore)

Table of Contents

Related product manuals