EasyManua.ls Logo

Accessmatic PB400 - Preparación de la Puerta; Base del Operador

Accessmatic PB400
Print Icon
To Next Page IconTo Next Page
To Next Page IconTo Next Page
To Previous Page IconTo Previous Page
To Previous Page IconTo Previous Page
Loading...
Opening your life
Code: PB400
www.accessmac.com
Opening your life
5
Preparación de la puerta
Asegúrese de que la puerta esté instalada debidamente y que se deslice suavemente antes de instalar el motor de puerta
corrediza PB400. La puerta debe estar recta, nivelada y moverse libremente.
Conducto
Con el n de proteger el cable, utilice un conducto o tubo PVC para cables de alimentación de bajo voltaje y cables d e
control. El conducto debe estar anclado en el concreto cuando se vierte. Los cables dentro de los conductos deben ser
ubicados y protegidos de tal manera que no pueda resultar ningún daño al contacto con partes ásperas o aladas.
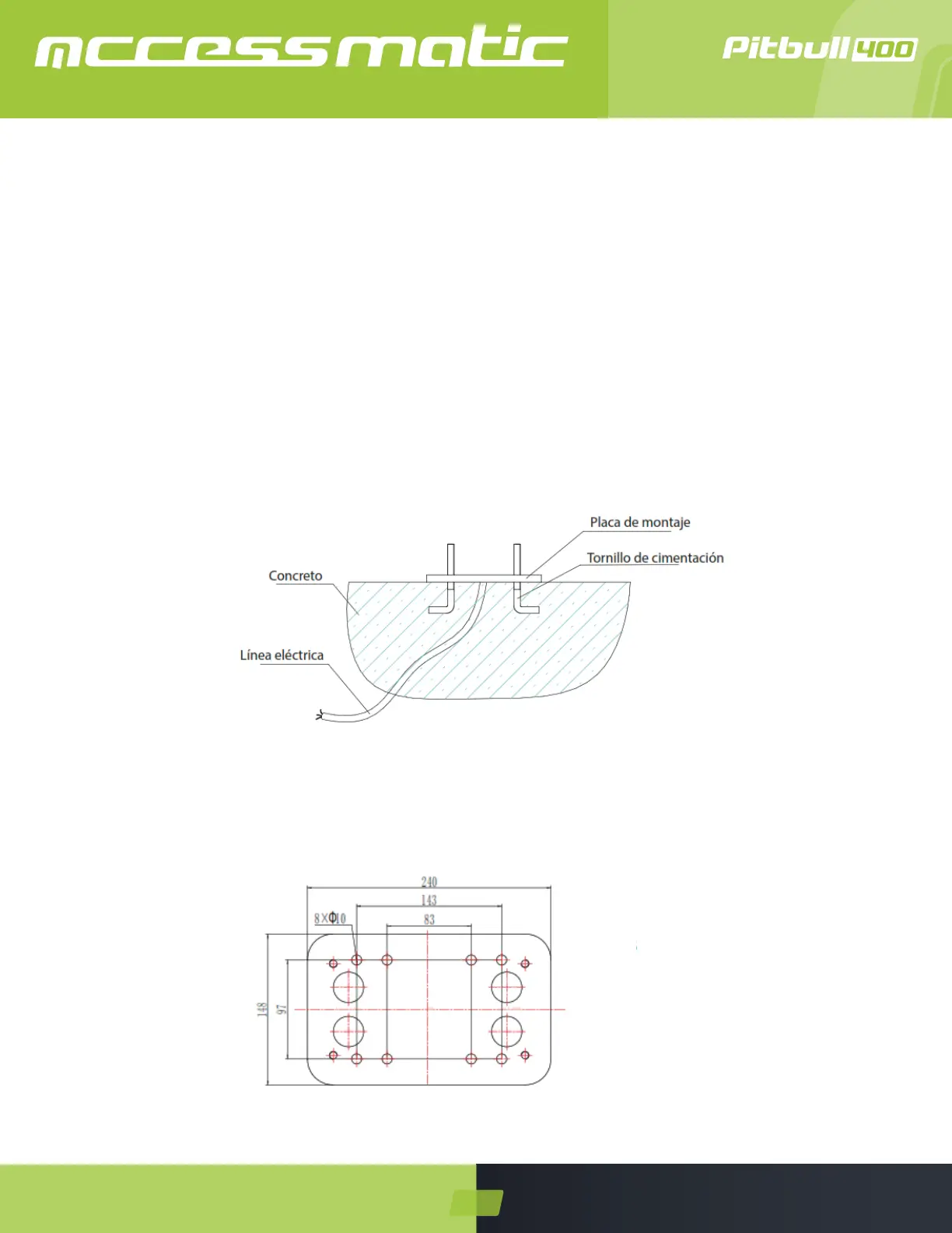
Plataforma de concreto
La unidad de base del motor de puerta requiere una plataforma de concreto con el n de mantener la estabilidad. La plata-
forma de concreto debe tener las siguientes dimensiones aproximadamente: 450mm x 300mm x 200mm de profundidad
con el objetivo de proporcionar el peso y estructura adecuada para garantizar una instalación estable.
Base del operador
Después de que el concreto haya endurecido, monte la base del motor de puerta a la plataforma de concreto. Compruebe
que la base este nivelada correctamente. Utilizar los pernos, arandelas, montar el motor de puerta a la base e inserte la tapa.
Revise el operador y asegúrese que esté alineado con la puerta.
Figura 3

Related product manuals