EasyManua.ls Logo

ACP HDC12A2 - Schematic Diagram

ACP HDC12A2
7 pages
Print Icon
To Previous Page IconTo Previous Page
To Previous Page IconTo Previous Page
Loading...
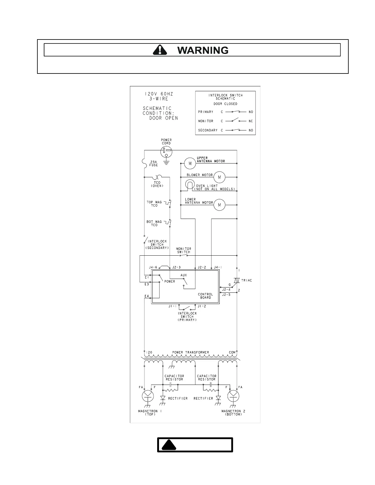
Wiring and Schematic Diagrams
To avoid risk of electrical shock, personal injury, or death, disconnect power to oven and discharge capacitor
before servicing, unless testing requires it.
July 2012 16500038
©2012 ACP, Inc.
7
20043101
DANGER
!
HIGH VOLTAGE