EasyManua.ls Logo

Acson A5MSY25BR - Page 35

Acson A5MSY25BR
98 pages
Print Icon
To Next Page IconTo Next Page
To Next Page IconTo Next Page
To Previous Page IconTo Previous Page
To Previous Page IconTo Previous Page
Loading...
32
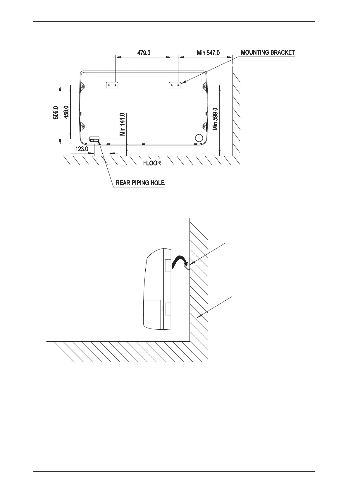
A5MSY-2010 Application Information
Floor Standing Installation
1. Refer to the dimension as illustrated when installing the mounting bracket.
2. Determine the pipe hose position using the rear piping hole. Drill the pipe hole at the slight downward slant
to the outdoor side.
WALL
MOUNTING BRACKET
HOCK THE UNIT ON THE
MOUNTING BRACKET

Related product manuals