EasyManua.ls Logo

Acson AMSD-A Series - AMSH Series Refrigerant Circuits

Acson AMSD-A Series
88 pages
Print Icon
To Next Page IconTo Next Page
To Next Page IconTo Next Page
To Previous Page IconTo Previous Page
To Previous Page IconTo Previous Page
Loading...
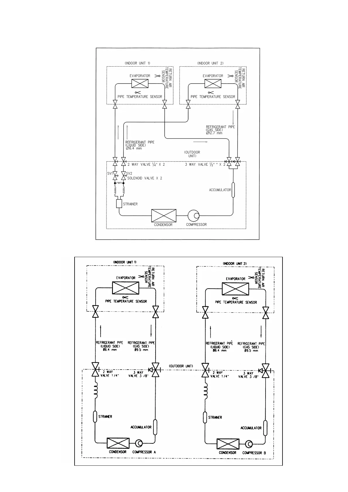
MODEL : AMSHK77A
MODEL : AMSH8K8A
52

Related product manuals