EasyManua.ls Logo

ADC AD-230 - Procedure for Functional Check of Replacement Components; Microprocessor (computer) Board

ADC AD-230
48 pages
Print Icon
To Next Page IconTo Next Page
To Next Page IconTo Next Page
To Previous Page IconTo Previous Page
To Previous Page IconTo Previous Page
Loading...
42
SECTION IX
PROCEDURE FOR FUNCTIONAL CHECK OF
REPLACEMENT COMPONENTS
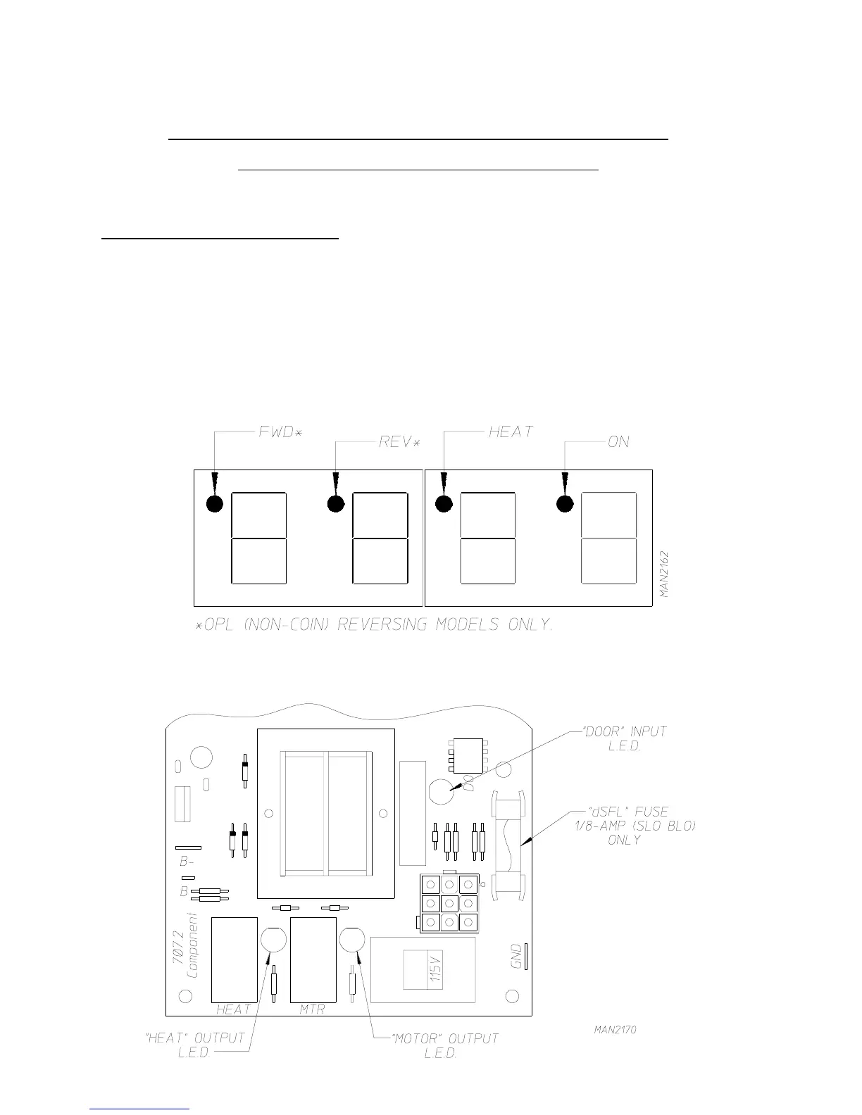
1. Microprocessor (computer) Board
a. Upon completing installation of the replacement microprocessor (computer) board,
reestablish power to the dryer.
b. Start the drying cycle.
c. Verify that the motor(s) and the heat indicator dots, in the microprocessor (computer) L.E.D.
display are on. (Refer to the illustration below.)
d. Verify that motor(s) heat, and door indicator lights on the back side of the microprocessor (computer)
board are lit. (Refer to illustration below.)

Related product manuals