EasyManua.ls Logo

Adp UHRS-030 - UHRS-030;105 Compact Unit Dimensions

Adp UHRS-030
28 pages
Print Icon
To Next Page IconTo Next Page
To Next Page IconTo Next Page
To Previous Page IconTo Previous Page
To Previous Page IconTo Previous Page
Loading...
Page 3
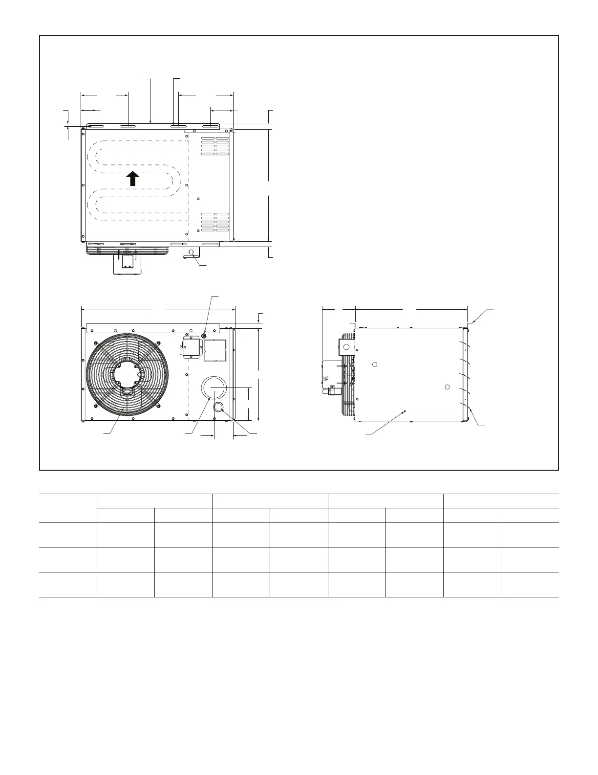
2-3/4
(70)
8-3/4
(222)
10-1/2
(267)
4-1/4
(108)
1/2
[13]
1
(25)
21
(533)
1
(25)
A
D
C
29
(737)
B 21
(533)
BACK VIEW
FLUE
OUTLET
GAS
INLET
DIRECT
DRIVE FAN
ELECTRICAL
INLET
BRACKETS (2)
HANGING
TOP VIEW
HEAT EXCHANGER
AIR
FLOW
MOUNTING SLOTS (Typical)
5/16 x 3 Inches (8 x 76 mm)
HANGING
BRACKETS (2)
SERVICE
ACCESS
PANEL
SIDE VIEW
ADJUSTABLE
LOUVERS
1
(25)
UHRS-030 / 105 DIMENSIONS - Inches (mm)
THERMOSTAT
INLET
Model
No.
A B C D
in. mm in. mm in. mm in. mm
UHRS-030A
UHRS-045A
12-3/8 314 6-1/2 165 4 102 6 152
UHRS-060A
UHRS-075A
17-1/2 445 6-1/4 159 6-1/8 156 3-5/8 92
UHRS-090A
UHRS-105A
23 584 7-7/8 200 9-1/8 232 3-5/8 92

Related product manuals