EasyManua.ls Logo

AEG DD9996-B - Page 53

AEG DD9996-B
76 pages
Print Icon
To Next Page IconTo Next Page
To Next Page IconTo Next Page
To Previous Page IconTo Previous Page
To Previous Page IconTo Previous Page
Loading...
CARACTERÍSTICAS
53




CARACTERÍSTICAS
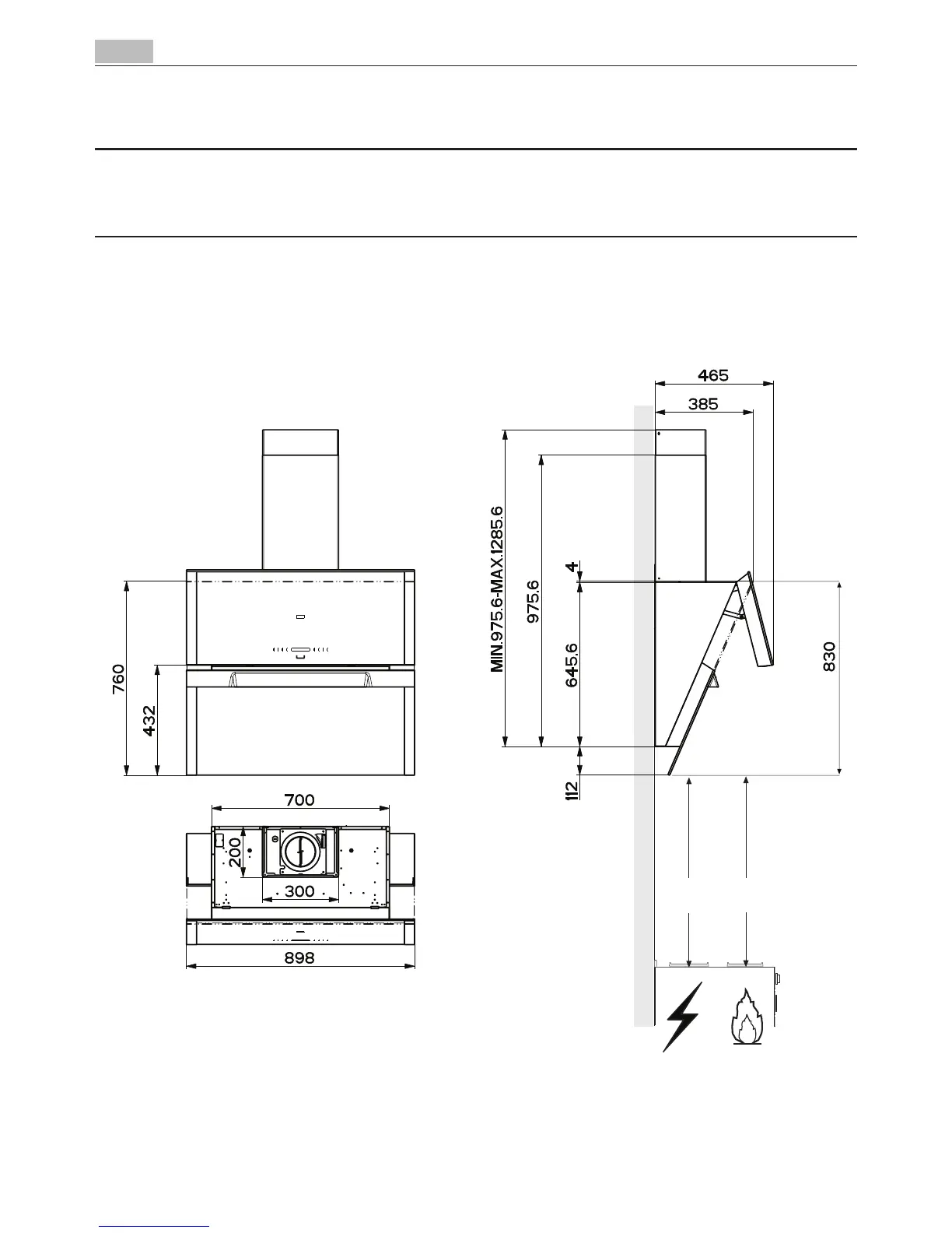
Dimensiones

Related product manuals