EasyManua.ls Logo

AEG F87782M0P - Installation

AEG F87782M0P
28 pages
Print Icon
To Next Page IconTo Next Page
To Next Page IconTo Next Page
To Previous Page IconTo Previous Page
To Previous Page IconTo Previous Page
Loading...
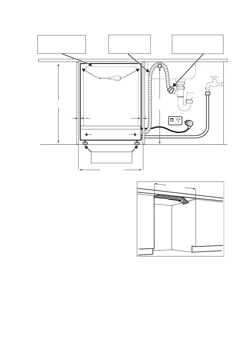
14. INSTALLATION
If floor is not level, adjust
levelling legs to suit
The hose should not be
extended by more than
2 metres or water pump-
out
problems may occur
Removeentire plastic
membranefrom sink trap
spigot & fit drain hose to spigot
with clamp
Thereshould be a minimum
2mm gap between the top of
the dishwasher and
underside of bench top
kickplate fixing screws
Gap on both sides should be
equal, & no greater than
5 mm per side.
Secure dishwasher with
brackets and screws provided
820-880 mm
600 mm max
300 mm min
600 mm
DISHWASHER
SINK
POWER OUTLET
Install the appliance under a kitchen
counter.
Put the appliance adjacent to a water tap
and a water drain.
For the venting of the appliance only
water hoses and mains cable openings
are necessary.
14.1 Adhesive steam
protection
Fit the steam protection on the front part
of the kitchen counter along the entire
width.
600 mm
14.2 Adjusting the height of
the appliance
1. Remove the adjustable plinth.
www.aeg.com
22

Related product manuals