EasyManua.ls Logo

Aerco B+05 - Anticipator Check Valve Disassembly

Default Icon
50 pages
Print Icon
To Next Page IconTo Next Page
To Next Page IconTo Next Page
To Previous Page IconTo Previous Page
To Previous Page IconTo Previous Page
Loading...
1B+ II Water Wizard Water Heaters HE-110
Installation, Operation & Maintenance Manual OMM-0063_0D
11/28/2018 Page 31 of 50
AERCO International, Inc. 100 Oritani Dr. Blauvelt, New York 10913
Phone: 800-526-0288
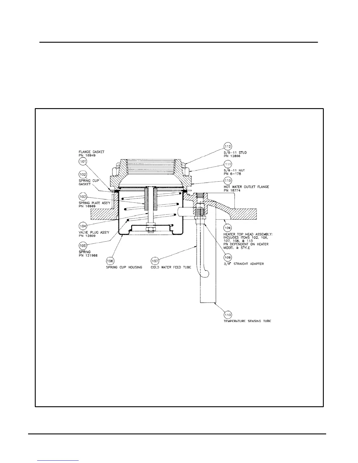
10.4. ANTICIPATOR CHECK VALVE DISASSEMBLY
To disassemble the Anticipator Check Valve, proceed as follows:
10.4.1. Special Tools Required
Torque wrench for 5/8” nuts.
A block and tackle or ratchet hoist is recommended for lifting off the Heater top head and
shell, or for lifting and moving the Heater.
Anticipator Check Valve Disassembly Instructions
1) Shut down the Heater in accordance with Step 10 under OPERATING PROCEDURES.
Manually (and carefully) open a relief valve to relieve any pressure in the Heater shell.
Figure 11Model B+II Heater Control Box
2) Disconnect the union in the Hot water outlet piping (the one located beyond the outside
diameter of the Heater top head). Then remove the Nuts (51) and the Outlet Flange (31) and
outlet piping.
3) Separately, lift the Spring Plate Assembly (33), the Gasket (32), the Spring (34), the Washer
(35), and the Valve Plug (35).
4) Clean all parts and gasket surfaces thoroughly, and repair or replace any part necessary to
make the Check Valve operate properly (open on water flow through the Heater).

Table of Contents

Related product manuals